ルフォンリヴェント池袋801 8階 | 1LDK | 20万円
セキュリティ面は、オートロック・TVインターホンなどを備え付けているので安心して暮らせます。
| 賃料 | 20万円 | 管理費・共益費 | 2万円 |
|---|---|---|---|
| 敷金/礼金 | 1ヶ月 / なし | 専有面積 | 32.71m² |
| 間取り | 1LDK | 階建 | 8階/14階建 |
ルフォンリヴェント池袋801の詳細
| 物件種別 | マンション | ||
|---|---|---|---|
| 賃料 | 20万円 | 管理費・共益費 | 2万円 |
| 敷金/保証金 | 1ヶ月 / - | 礼金/償却・敷引 | なし / - |
| 更新料 | 1ヶ月 | ||
| その他費用 | - | ||
| 所在地 | 東京都豊島区池袋2丁目51-7 | ||
| 交通 | |||
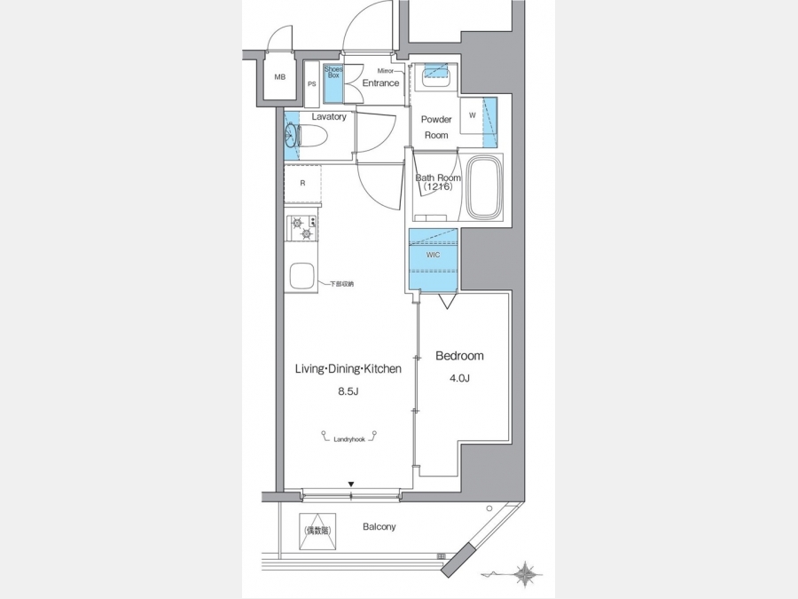
| 間取り | 1LDK | 間取り内訳 |
LDK 8.5 畳 1 室 洋室 4 畳 1 室 |
| 専有面積 | 32.71m² | バルコニー面積 | |
| 築年月(築年数) | 2025年12月(新築) | 方位 | 西 |
| 建物構造 | RC(鉄筋コンクリート) | 所在階/階建 | 8階/14階建 |
| 総戸数 | - | 駐車場 | 空無 |
| 保険料 | 要 18,000円 2年 | 契約期間 | 2年間 |
| 現況(予定年月) | 即時 | ||
| 管理 | |||
| 設備・条件 | 2階以上、角部屋、システムキッチン、バス・トイレ別、温水洗浄便座、浴室乾燥機、フローリング、エアコン、ウォークインクローゼット、バルコニー、即入居可、礼金なし、ペット相談、2人入居相談、仲介手数料無料、インターネット対応、BSアンテナ、CSアンテナ、CATV、オートロック、TVドアホン、防犯カメラ、宅配ボックス、エレベータ、都市ガス | ||
| 備考 | 清掃代83600円※20平米を超える場合+1375円/平米。エアコン清掃費用16500円/台。礼金0(1年未満解約違約金1ヶ月)。ペット飼育可能(小型犬・猫/敷金1ヶ月積増)。無料インターネット導入済。駐輪場330円か550円/月。 | ||
| 周辺施設 |
コンビニ距離81m、スーパー距離172m、病院距離336m |
||
| 物件番号 | 1001818 | 取引態様 | 仲介 |
| 情報更新日 | 2026年03月10日 | ||
| 物件番号 | |||
敷金・礼金・家賃・入居時期時期など、何でもご相談ください!
3路線3駅利用可の板橋エリアでお部屋探し♪
ハウス・トゥ・ハウス板橋東口店で元気にお待ちしております!







