Kolet舎人公園#041 1階 | 2SLDK | 23万円
ペット相談可♪無料駐車場1台付き♪
| 賃料 | 23万円 | 管理費・共益費 | なし |
|---|---|---|---|
| 敷金/礼金 | 1ヶ月 / 1ヶ月 | 専有面積 | 95.62m² |
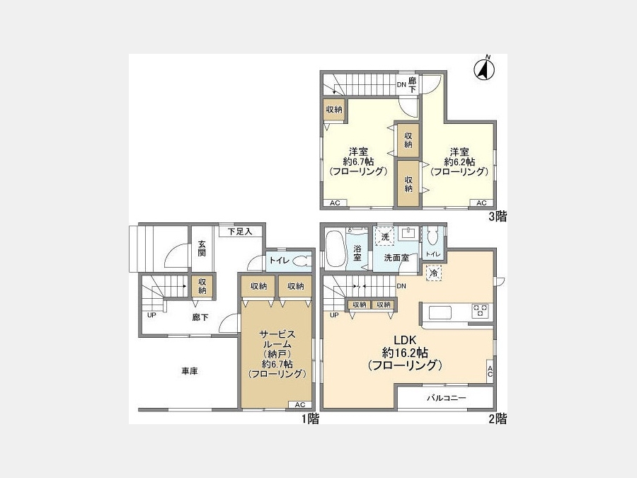
| 間取り | 2SLDK | 階建 | 1階/3階建 |
Kolet舎人公園#041の詳細
| 物件種別 | 一戸建 | ||
|---|---|---|---|
| 賃料 | 23万円 | 管理費・共益費 | なし |
| 敷金/保証金 | 1ヶ月 / - | 礼金/償却・敷引 | 1ヶ月 / - |
| 更新料 | 1ヶ月 | ||
| その他費用 |
清掃費:126,218円 エアコン清掃費:44,000円 室内清掃費用:126,218円 |
||
| 所在地 | 東京都足立区皿沼1丁目13-8 | ||
| 交通 |
日暮里・舎人ライナー「舎人公園駅」 徒歩13分 日暮里・舎人ライナー「谷在家駅」 徒歩13分 |
||
| 間取り | 2SLDK | 間取り内訳 |
LDK 16.2 畳 洋室 6.7 畳 洋室 6.2 畳 S 6.7 畳 |
| 専有面積 | 95.62m² | バルコニー面積 | |
| 築年月(築年数) | 2022年12月(築3年) | 方位 | 南東 |
| 建物構造 | 木造 | 所在階/階建 | 1階/3階建 |
| 総戸数 | 1戸 | 駐車場 | 空有1台/- |
| 保険料 | 要 16,550円 2年 | 契約期間 | 2年間 |
| 現況(予定年月) | 2026年03月上旬 | ||
| 管理 | |||
| 設備・条件 | システムキッチン、カウンターキッチン、バス・トイレ別、温水洗浄便座、追い焚き、室内洗濯機置き場、フローリング、エアコン、バルコニー、ペット相談、楽器相談、2人入居相談、TVドアホン、宅配ボックス | ||
| 備考 | ペット2匹相談可(大型犬は1匹迄)※1匹あたりの敷金積増:猫・小型犬は1ヶ月、中型犬・大型犬は2ヶ月。 1年未満解約時賃料1ヶ月分違約金有。 解約予告2ヶ月前。 | ||
| 周辺施設 |
コンビニ距離966m、スーパー距離771m、病院距離1,952m |
||
| 物件番号 | 989911 | 取引態様 | 仲介 |
| 情報更新日 | 2026年02月14日 | ||
| 物件番号 | |||
敷金・礼金・家賃・入居時期時期など、何でもご相談ください!
歴史と情緒が薫る街・西日暮里でお部屋探し♪
ハウス・トゥ・ハウス西日暮里店で元気にお待ちしております!







