デュオフラッツ板橋大山602 6階 | 3LDK | 30万円
歩いて3分のところに板橋警察署 熊野町交番があります。共用部にはゴミ出し24時間OK・宅配ボックス
| 賃料 | 30万円 | 管理費・共益費 | 2万円 |
|---|---|---|---|
| 敷金/礼金 | 1ヶ月 / なし | 専有面積 | 70.34m² |
| 間取り | 3LDK | 階建 | 6階/14階建 |
デュオフラッツ板橋大山602の詳細
| 物件種別 | マンション | ||
|---|---|---|---|
| 賃料 | 30万円 | 管理費・共益費 | 2万円 |
| 敷金/保証金 | 1ヶ月 / - | 礼金/償却・敷引 | なし / - |
| 更新料 | 1ヶ月 | ||
| その他費用 | M-REALプレミアム会費(2年):19,800円 | ||
| 所在地 | 東京都板橋区熊野町41-0 | ||
| 交通 | |||
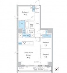
| 間取り | 3LDK | 間取り内訳 |
LDK 16 畳 1 室 洋室 5.7 畳 1 室 洋室 4.9 畳 1 室 洋室 3.1 畳 1 室 |
| 専有面積 | 70.34m² | バルコニー面積 | |
| 築年月(築年数) | 2026年02月(建築中) | 方位 | 南東 |
| 建物構造 | RC(鉄筋コンクリート) | 所在階/階建 | 6階/14階建 |
| 総戸数 | 29戸 | 駐車場 | 無 |
| 保険料 | 要 32,000円 2年 | 契約期間 | 2年間 |
| 現況(予定年月) | 2026年02月下旬 | ||
| 管理 | |||
| 設備・条件 | 2階以上、角部屋、システムキッチン、バス・トイレ別、温水洗浄便座、浴室乾燥機、追い焚き、室内洗濯機置き場、フローリング、エアコン、ウォークインクローゼット、バルコニー、礼金なし、ペット相談、楽器相談、インターネット対応、BSアンテナ、オートロック、TVドアホン、防犯カメラ、宅配ボックス、バイク置き場、駐輪場、エレベータ、都市ガス | ||
| 備考 | 1年未満の解約は賃料1ヶ月分の違約金あり。 ペット飼育相談可(敷金1ヶ月追加)。 退去時(清掃費実費・AC清掃費22000円) | ||
| 周辺施設 |
コンビニ距離48m、スーパー距離150m、病院距離679m |
||
| 物件番号 | 959336 | 取引態様 | 仲介 |
| 情報更新日 | 2026年01月22日 | ||
| 物件番号 | |||
敷金・礼金・家賃・入居時期時期など、何でもご相談ください!
池袋まで埼京線で5分というアクセス利便性が魅力★
ハウス・トゥ・ハウス板橋店で元気にお待ちしております!







