セジョリ板橋桜通り209 2階 | 1LDK | 17.9万円
安心のオートロック付き!ペット飼育可能!
| 賃料 | 17.9万円 | 管理費・共益費 | 1.2万円 |
|---|---|---|---|
| 敷金/礼金 | なし / 1ヶ月 | 専有面積 | 55.64m² |
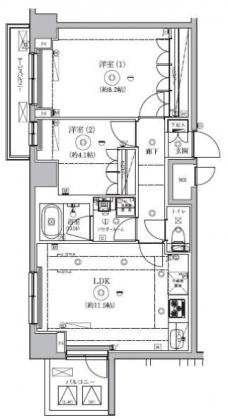
| 間取り | 1LDK | 階建 | 2階/8階建 |
セジョリ板橋桜通り209の詳細
| 物件種別 | マンション | ||
|---|---|---|---|
| 賃料 | 17.9万円 | 管理費・共益費 | 1.2万円 |
| 敷金/保証金 | なし / - | 礼金/償却・敷引 | 1ヶ月 / - |
| 更新料 | 1.5ヶ月 | ||
| その他費用 | 鍵交換費用:22,000円 | ||
| 所在地 | 東京都北区滝野川7丁目24-6 | ||
| 交通 | |||
| 間取り | 1LDK | 間取り内訳 |
S 4.1 畳 |
| 専有面積 | 55.64m² | バルコニー面積 | |
| 築年月(築年数) | 2016年09月(築9年) | 方位 | 北西 |
| 建物構造 | RC(鉄筋コンクリート) | 所在階/階建 | 2階/8階建 |
| 総戸数 | - | 駐車場 | |
| 保険料 | 要 23,000円 2年 | 契約期間 | 2年間 |
| 現況(予定年月) | 2026年03月上旬 | ||
| 管理 | |||
| 設備・条件 | 2階以上、システムキッチン、バス・トイレ別、温水洗浄便座、浴室乾燥機、室内洗濯機置き場、フローリング、エアコン、バルコニー、分譲賃貸、敷金なし、保証人不要、インターネット対応、BSアンテナ、CSアンテナ、CATV、オートロック、TVドアホン、宅配ボックス、バイク置き場、駐輪場、エレベータ、都市ガス | ||
| 備考 | 更新事務手数料:15000円 ペット飼育時 敷金1ヶ月追加(償却):犬・猫いずれか1匹(小型犬50以下、10kg以下 | ||
| 周辺施設 |
コンビニ距離235m、スーパー距離14m、病院距離475m |
||
| 物件番号 | 992865 | 取引態様 | 仲介 |
| 情報更新日 | 2026年02月20日 | ||
| 物件番号 | |||
敷金・礼金・家賃・入居時期時期など、何でもご相談ください!
3路線3駅利用可の板橋エリアでお部屋探し♪
ハウス・トゥ・ハウス板橋東口店で元気にお待ちしております!







