レオパレスSensuiⅢ202 2階 | 1K | 8万円
「レオパレスSensui」のここがイチオシ。歩いて2分のところに光が丘警察署 旭町駐在所があります。
| 賃料 | 8万円 | 管理費・共益費 | 0.75万円 |
|---|---|---|---|
| 敷金/礼金 | なし / 1ヶ月 | 専有面積 | 19.87m² |
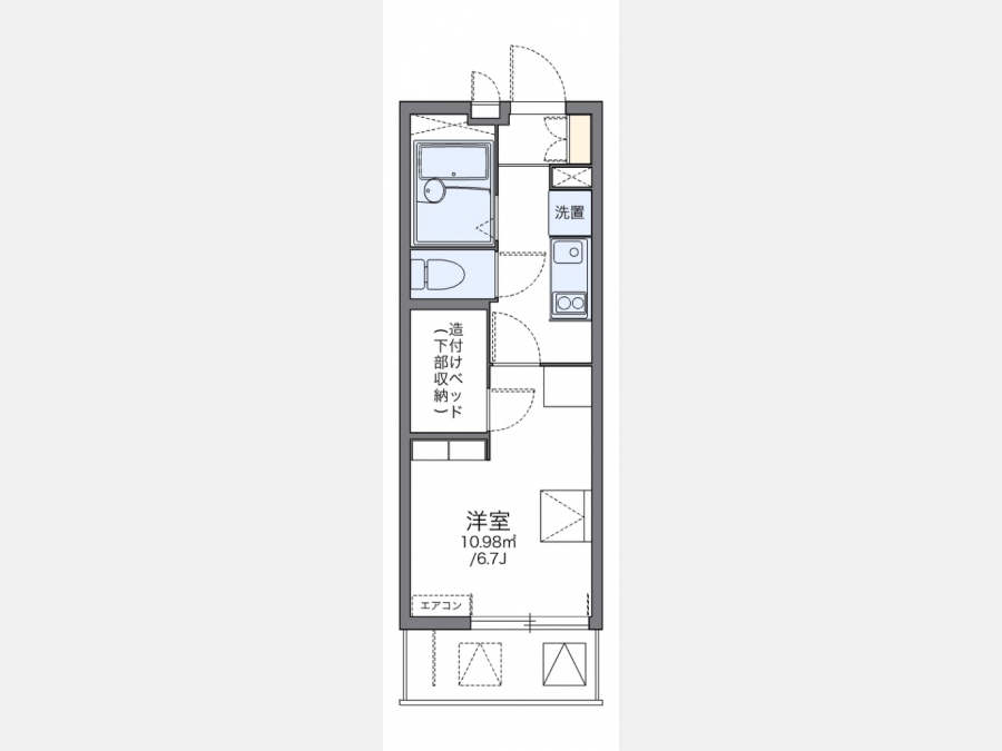
| 間取り | 1K | 階建 | 2階/4階建 |
レオパレスSensuiⅢ202の詳細
| 物件種別 | マンション | ||
|---|---|---|---|
| 賃料 | 8万円 | 管理費・共益費 | 0.75万円 |
| 敷金/保証金 | なし / - | 礼金/償却・敷引 | 1ヶ月 / - |
| 更新料 | 16,500円 | ||
| その他費用 |
鍵交換費用:16,500円 室内清掃費用:41,800円 |
||
| 所在地 | 東京都練馬区旭町3丁目21-14 | ||
| 交通 | |||
| 間取り | 1K | 間取り内訳 | |
| 専有面積 | 19.87m² | バルコニー面積 | |
| 築年月(築年数) | 2009年10月(築16年) | 方位 | - |
| 建物構造 | 鉄骨造 | 所在階/階建 | 2階/4階建 |
| 総戸数 | 19戸 | 駐車場 | |
| 保険料 | 要 26,680円 2年 | 契約期間 | 2年間 |
| 現況(予定年月) | 2026年01月下旬 | ||
| 管理 | |||
| 設備・条件 | 2階以上、バス・トイレ別、温水洗浄便座、浴室乾燥機、室内洗濯機置き場、エアコン、バルコニー、敷金なし、TVドアホン | ||
| 備考 | 環境維持費550円(月額) 更新手数料:16500円。光が丘警察署 旭町駐在所が家から145mのところにあります。お風呂の湿気を減らす浴室乾燥機を備え付けたマンションです。住まいを副都心線地下鉄成増周辺で求めるのであれば、当社でお部屋探しを行ってください。当社でなら、きっとお客様の希望条件にマッチしたお部屋が見つかることでしょう。 | ||
| 周辺施設 |
コンビニ距離558m、スーパー距離535m、病院距離864m |
||
| 物件番号 | 957213 | 取引態様 | 仲介 |
| 情報更新日 | 2026年02月03日 | ||
| 物件番号 | |||
敷金・礼金・家賃・入居時期時期など、何でもご相談ください!
3路線3駅利用可の板橋エリアでお部屋探し♪
ハウス・トゥ・ハウス板橋東口店で元気にお待ちしております!







