GRAND BEAR302 3階 | 1LDK | 10.3万円
オートロック・TVモニターホン完備で安心のセキュリティ!
| 賃料 | 10.3万円 | 管理費・共益費 | 0.5万円 |
|---|---|---|---|
| 敷金/礼金 | なし / 1ヶ月 | 専有面積 | 28.37m² |
| 間取り | 1LDK | 階建 | 3階/3階建 |
GRAND BEAR302の詳細
| 物件種別 | マンション | ||
|---|---|---|---|
| 賃料 | 10.3万円 | 管理費・共益費 | 0.5万円 |
| 敷金/保証金 | なし / - | 礼金/償却・敷引 | 1ヶ月 / - |
| 更新料 | 1ヶ月 | ||
| その他費用 | - | ||
| 所在地 | 東京都荒川区東尾久8丁目35-6 | ||
| 交通 |
日暮里・舎人ライナー「熊野前駅」 徒歩6分 |
||
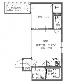
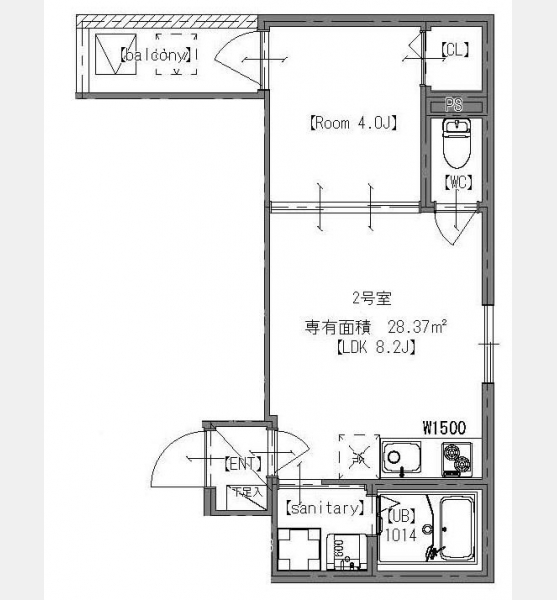
| 間取り | 1LDK | 間取り内訳 |
LDK 8.2 畳 1 室 洋室 4 畳 1 室 |
| 専有面積 | 28.37m² | バルコニー面積 | |
| 築年月(築年数) | 2025年11月(新築) | 方位 | 西 |
| 建物構造 | 鉄骨造 | 所在階/階建 | 3階/3階建 |
| 総戸数 | 6戸 | 駐車場 | |
| 保険料 | 要 | 契約期間 | 2年間 |
| 現況(予定年月) | 即時 | ||
| 管理 | |||
| 設備・条件 | 2階以上、最上階、角部屋、システムキッチン、バス・トイレ別、温水洗浄便座、浴室乾燥機、室内洗濯機置き場、フローリング、エアコン、バルコニー、即入居可、敷金なし、2人入居相談、オートロック、TVドアホン、宅配ボックス、駐輪場、都市ガス、低層マンション | ||
| 備考 | 駆けつけサービス880円(月額) 火災保険800円(月額) 更新事務手数料11000円 短期解約違約金あり:1年以内の解約で1ヶ月分 掲載情報と現況が異なる場合は、現況を優先とします。 | ||
| 周辺施設 |
コンビニ距離296m、スーパー距離340m、病院距離543m |
||
| 物件番号 | 954580 | 取引態様 | 仲介 |
| 情報更新日 | 2026年02月03日 | ||
| 物件番号 | |||
敷金・礼金・家賃・入居時期時期など、何でもご相談ください!
JR山手線・巣鴨駅から徒歩1分!
ハウス・トゥ・ハウス巣鴨店で元気にお待ちしております!







