ジェノヴィア北池袋スカイガーデン101 1階 | 1DK | 13.2万円
インターネット使用料無料の物件です。
| 賃料 | 13.2万円 | 管理費・共益費 | 1万円 |
|---|---|---|---|
| 敷金/礼金 | なし / なし | 専有面積 | 28.20m² |
| 間取り | 1DK | 階建 | 1階/6階建 |
ジェノヴィア北池袋スカイガーデン101の詳細
| 物件種別 | マンション | ||
|---|---|---|---|
| 賃料 | 13.2万円 | 管理費・共益費 | 1万円 |
| 敷金/保証金 | なし / - | 礼金/償却・敷引 | なし / - |
| 更新料 | 1ヶ月 | ||
| その他費用 |
契約事務手数料:11,000円 消臭抗菌サービス:11,000円 クリーニング費用:38,500円 |
||
| 所在地 | 東京都北区滝野川7丁目25-14 | ||
| 交通 | |||
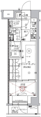
| 間取り | 1DK | 間取り内訳 |
洋室 3.7 畳 DK 4.9 畳 |
| 専有面積 | 28.20m² | バルコニー面積 | |
| 築年月(築年数) | 2025年10月(新築) | 方位 | 北西 |
| 建物構造 | RC(鉄筋コンクリート) | 所在階/階建 | 1階/6階建 |
| 総戸数 | - | 駐車場 | |
| 保険料 | 要 | 契約期間 | 2年間 |
| 現況(予定年月) | 即時 | ||
| 管理 | |||
| 設備・条件 | 1階、システムキッチン、バス・トイレ別、温水洗浄便座、浴室乾燥機、室内洗濯機置き場、フローリング、エアコン、ウォークインクローゼット、バルコニー、即入居可、礼金なし、敷金なし、ペット相談、2人入居相談、仲介手数料無料、インターネット対応、BSアンテナ、CSアンテナ、オートロック、TVドアホン、宅配ボックス、駐輪場、エレベータ、都市ガス | ||
| 備考 | 法人契約の場合敷金1ヵ月積み増し 1年未満解約の場合総賃料の1ヶ月分短期解約違約金あり。 解約予告2ヶ月前 ペット飼育相談可能飼育時敷金プラス1か月(解約時償却) | ||
| 周辺施設 |
コンビニ距離366m、スーパー距離117m、病院距離513m |
||
| 物件番号 | 955815 | 取引態様 | 仲介 |
| 情報更新日 | 2026年01月12日 | ||
| 物件番号 | |||
敷金・礼金・家賃・入居時期時期など、何でもご相談ください!
3路線3駅利用可の板橋エリアでお部屋探し♪
ハウス・トゥ・ハウス板橋東口店で元気にお待ちしております!







