プレジオ川口1403 14階 | 1SLDK | 16万円
川口市にお引っ越しが決まったら、住まい探しは当社にお任せください。当社では豊富な賃貸情報をご用意し
| 賃料 | 16万円 | 管理費・共益費 | 1.5万円 |
|---|---|---|---|
| 敷金/礼金 | なし / なし | 専有面積 | 42.06m² |
| 間取り | 1SLDK | 階建 | 14階/15階建 |
360度パノラマ
プレジオ川口1403の詳細
| 物件種別 | マンション | ||
|---|---|---|---|
| 賃料 | 16万円 | 管理費・共益費 | 1.5万円 |
| 敷金/保証金 | なし / - | 礼金/償却・敷引 | なし / - |
| 更新料 | 1ヶ月 | ||
| その他費用 |
リロレント24安心サービス:20,000円 預りクリーニング:66,000円 |
||
| 所在地 | 埼玉県川口市幸町1丁目3-14 | ||
| 交通 |
JR京浜東北・根岸線「川口駅」 徒歩11分 |
||
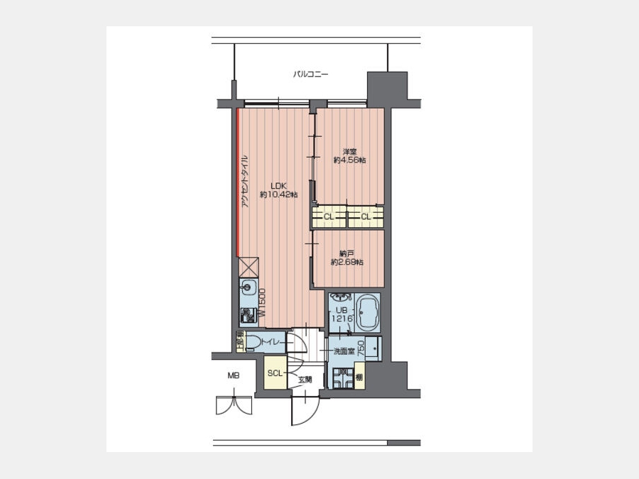
| 間取り | 1SLDK | 間取り内訳 |
洋室 4.5 畳 LDK 10.4 畳 S 2.6 畳 |
| 専有面積 | 42.06m² | バルコニー面積 | |
| 築年月(築年数) | 2025年08月(新築) | 方位 | 北 |
| 建物構造 | RC(鉄筋コンクリート) | 所在階/階建 | 14階/15階建 |
| 総戸数 | - | 駐車場 |
空有-台/-26,400円 全19台 空き要確認 |
| 保険料 | 要 20,000円 2年 | 契約期間 | 2年間 |
| 現況(予定年月) | 即時 | ||
| 管理 | |||
| 設備・条件 | 2階以上、システムキッチン、バス・トイレ別、温水洗浄便座、浴室乾燥機、追い焚き、室内洗濯機置き場、フローリング、エアコン、バルコニー、即入居可、礼金なし、敷金なし、保証人不要、ペット相談、2人入居相談、360°パノラマ有り、インターネット対応、BSアンテナ、CSアンテナ、オートロック、TVドアホン、宅配ボックス、バイク置き場、駐輪場、エレベータ、都市ガス | ||
| 備考 | お車でご案内します。お気軽にお問い合わせください。 1年未満の解約の場合、賃料1ヶ月分の違約金あり ペット飼育相談(小型犬、猫1匹まで)※共益費3000円増+敷金1ヶ月増 | ||
| 周辺施設 |
コンビニ距離182m、スーパー距離539m、病院距離302m |
||
| 物件番号 | 953479 | 取引態様 | 仲介 |
| 情報更新日 | 2026年03月04日 | ||
| 物件番号 | |||
敷金・礼金・家賃・入居時期時期など、何でもご相談ください!
埼玉県への玄関口・川口でお部屋探し♪
ハウス・トゥ・ハウス川口店で元気にお待ちしております!







