アーバンパーク成増Ⅱ406 4階 | 1LDK | 14.3万円
セブンイレブン 板橋成増店まで徒歩3分と近場にコンビニがあるのもポイント。マンションの周辺に駅が2
| 賃料 | 14.3万円 | 管理費・共益費 | 1.5万円 |
|---|---|---|---|
| 敷金/礼金 | なし / なし | 専有面積 | 35.71m² |
| 間取り | 1LDK | 階建 | 4階/5階建 |
アーバンパーク成増Ⅱ406の詳細
| 物件種別 | マンション | ||
|---|---|---|---|
| 賃料 | 14.3万円 | 管理費・共益費 | 1.5万円 |
| 敷金/保証金 | なし / - | 礼金/償却・敷引 | なし / - |
| 更新料 | 1ヶ月 | ||
| その他費用 | 鍵交換費用:25,300円 | ||
| 所在地 | 東京都板橋区赤塚4丁目14-8 | ||
| 交通 | |||
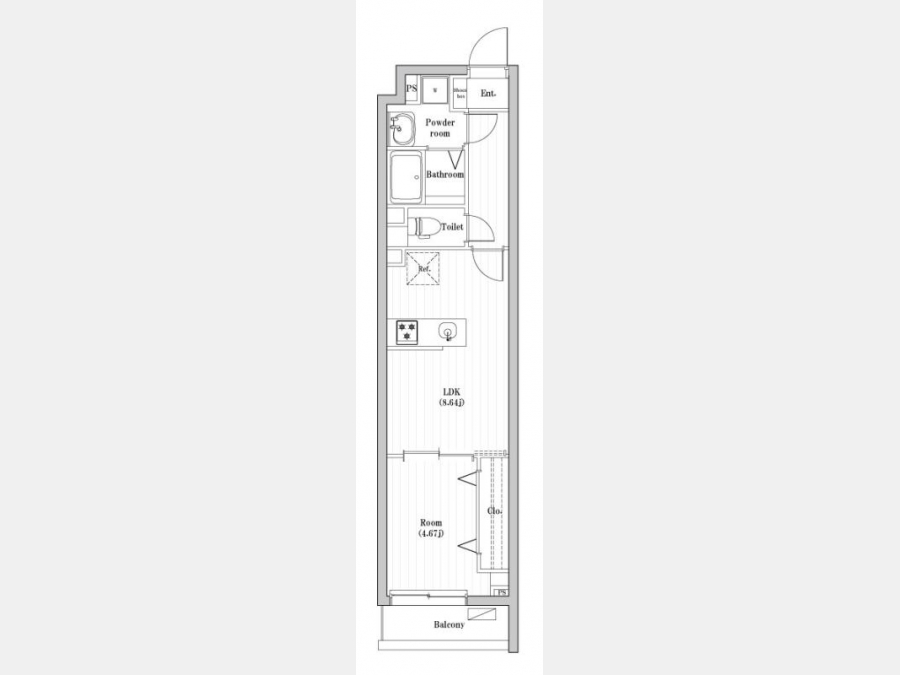
| 間取り | 1LDK | 間取り内訳 |
洋室 4.6 畳 1 室 LDK 8.6 畳 1 室 |
| 専有面積 | 35.71m² | バルコニー面積 | |
| 築年月(築年数) | 2025年02月(築1年) | 方位 | 東 |
| 建物構造 | RC(鉄筋コンクリート) | 所在階/階建 | 4階/5階建 |
| 総戸数 | - | 駐車場 | |
| 保険料 | 要 25,000円 2年 | 契約期間 | 2年間 |
| 現況(予定年月) | 2026年04月下旬 | ||
| 管理 | |||
| 設備・条件 | 2階以上、システムキッチン、バス・トイレ別、温水洗浄便座、室内洗濯機置き場、フローリング、エアコン、バルコニー、分譲賃貸、礼金なし、敷金なし、2人入居相談、インターネット対応、BSアンテナ、CSアンテナ、オートロック、TVドアホン、宅配ボックス、エレベータ、都市ガス | ||
| 備考 | 解約予告2ヶ月前。ペット飼育時 敷金1ヶ月追加(償却)※犬・猫いずれか1匹(小型犬50cm以下、10kg以下)。短期解約違約金あり:1年未満解約時、総賃料の1ヶ月。Wi-Fiインターネット無料:UCOM光。情報と現況が異なる場合は現況を優先させていただきます。 | ||
| 周辺施設 |
コンビニ距離60m、スーパー距離647m、病院距離409m |
||
| 物件番号 | 989688 | 取引態様 | 仲介 |
| 情報更新日 | 2026年02月11日 | ||
| 物件番号 | |||
敷金・礼金・家賃・入居時期時期など、何でもご相談ください!
池袋まで埼京線で5分というアクセス利便性が魅力★
ハウス・トゥ・ハウス板橋店で元気にお待ちしております!







