アルファレジデンシア南千住1003 10階 | 1LDK | 17.6万円
室内設備は照明付き・エアコン・システムキッチンなど豊富に揃っており、過ごしやすいお部屋になっておりま
| 賃料 | 17.6万円 | 管理費・共益費 | 1万円 |
|---|---|---|---|
| 敷金/礼金 | 1ヶ月 / なし | 専有面積 | 40.14m² |
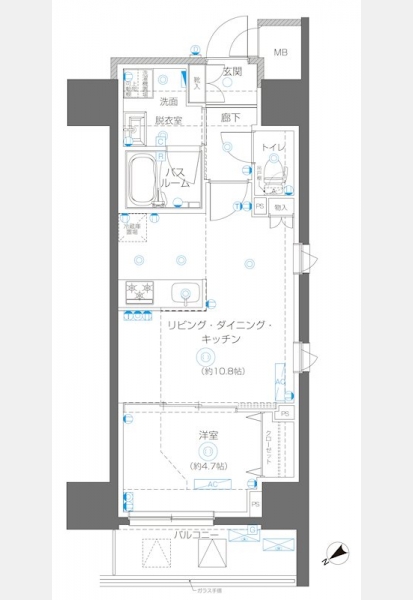
| 間取り | 1LDK | 階建 | 10階/15階建 |
アルファレジデンシア南千住1003の詳細
| 物件種別 | マンション | ||
|---|---|---|---|
| 賃料 | 17.6万円 | 管理費・共益費 | 1万円 |
| 敷金/保証金 | 1ヶ月 / - | 礼金/償却・敷引 | なし / - |
| 更新料 | 1ヶ月 | ||
| その他費用 | - | ||
| 所在地 | 東京都荒川区南千住1丁目59-7 | ||
| 交通 | |||
| 間取り | 1LDK | 間取り内訳 | |
| 専有面積 | 40.14m² | バルコニー面積 | |
| 築年月(築年数) | 2025年10月(新築) | 方位 | 北西 |
| 建物構造 | RC(鉄筋コンクリート) | 所在階/階建 | 10階/15階建 |
| 総戸数 | 119戸 | 駐車場 | |
| 保険料 | 要 | 契約期間 | 2年間 |
| 現況(予定年月) | 即時 | ||
| 管理 | |||
| 設備・条件 | 2階以上、システムキッチン、バス・トイレ別、温水洗浄便座、浴室乾燥機、追い焚き、室内洗濯機置き場、フローリング、エアコン、バルコニー、分譲賃貸、即入居可、礼金なし、ペット相談、2人入居相談、オートロック、TVドアホン、防犯カメラ、宅配ボックス、バイク置き場、駐輪場、エレベータ、都市ガス | ||
| 備考 | 家財保険+付帯サービス(税込)1835円(月額) ■契約時:当月分+翌月分の賃料・管理費をお支払い頂きます ■ペット飼育時:敷金1ヶ月追加(別途飼育細則参照・要申請書) ■解約時:ルームクリーニング費用及び借主負担分の原状回復費用をお支払い頂きます ■短期解約違約あり:契約開始日より1年未満に退去した場合は賃料+管理費の1ヶ月分を支払うこと ※内装は入居までに変更となる場合がございます | ||
| 周辺施設 |
コンビニ距離69m、スーパー距離335m、病院距離104m |
||
| 物件番号 | 956184 | 取引態様 | 仲介 |
| 情報更新日 | 2026年01月12日 | ||
| 物件番号 | |||
敷金・礼金・家賃・入居時期時期など、何でもご相談ください!
歴史と情緒が薫る街・西日暮里でお部屋探し♪
ハウス・トゥ・ハウス西日暮里店で元気にお待ちしております!







