RJRプレシア川口602 6階 | 2LDK | 18.8万円
生活する上でもっとも大切な住環境。川口市エリアや京浜東北線川口付近であなたのライフスタイルに合ったお
| 賃料 | 18.8万円 | 管理費・共益費 | 1.5万円 |
|---|---|---|---|
| 敷金/礼金 | 1ヶ月 / なし | 専有面積 | 55.43m² |
| 間取り | 2LDK | 階建 | 6階/10階建 |
RJRプレシア川口602の詳細
| 物件種別 | マンション | ||
|---|---|---|---|
| 賃料 | 18.8万円 | 管理費・共益費 | 1.5万円 |
| 敷金/保証金 | 1ヶ月 / - | 礼金/償却・敷引 | なし / - |
| 更新料 | 1ヶ月 | ||
| その他費用 | 室内清掃費用:103,654円 | ||
| 所在地 | 埼玉県川口市飯塚4丁目2-1 | ||
| 交通 |
JR京浜東北・根岸線「川口駅」 徒歩10分 |
||
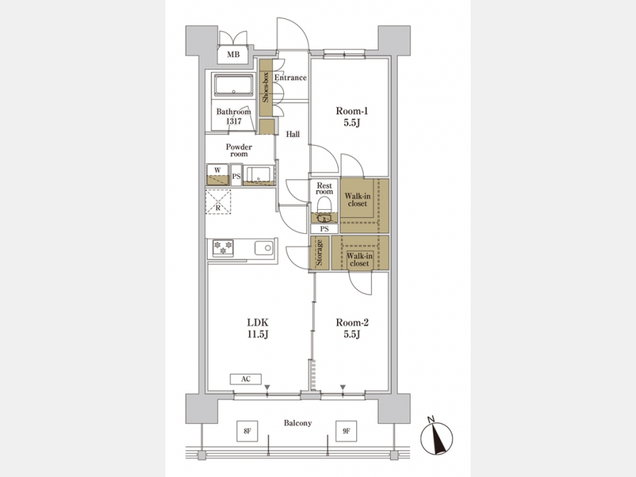
| 間取り | 2LDK | 間取り内訳 |
LDK 11.5 畳 洋室 5.5 畳 洋室 5.5 畳 |
| 専有面積 | 55.43m² | バルコニー面積 | |
| 築年月(築年数) | 2026年02月(新築) | 方位 | 南西 |
| 建物構造 | RC(鉄筋コンクリート) | 所在階/階建 | 6階/10階建 |
| 総戸数 | - | 駐車場 | 無 |
| 保険料 | 要 | 契約期間 | 2年間 |
| 現況(予定年月) | 即時 | ||
| 管理 | |||
| 設備・条件 | 2階以上、システムキッチン、バス・トイレ別、浴室乾燥機、室内洗濯機置き場、エアコン、ウォークインクローゼット、バルコニー、即入居可、礼金なし、ペット相談、2人入居相談、BSアンテナ、オートロック、宅配ボックス、駐輪場、エレベータ | ||
| 備考 | お車でご案内します。お気軽にお問い合わせください。 法人契約の場合、礼金1ヶ月増。 電子契約不可。 1年未満の解約の場合、賃料1ヶ月分の違約金あり。 駐輪場有料。 退去時エアコンクリーニング費負担あり。 | ||
| 周辺施設 |
コンビニ距離161m、スーパー距離487m |
||
| 物件番号 | 987702 | 取引態様 | 仲介 |
| 情報更新日 | 2026年02月07日 | ||
| 物件番号 | |||
敷金・礼金・家賃・入居時期時期など、何でもご相談ください!
2024年12月新規オープン!南浦和駅東口から徒歩1分♪
ハウス・トゥ・ハウス南浦和店で元気にお待ちしております!







