CITY WALK下板橋402 4階 | 1K | 8.8万円
セキュリティ面は、TVインターホン・オートロックなど充実しているので、防犯対策もばっちりです。照明付
| 賃料 | 8.8万円 | 管理費・共益費 | 0.5万円 |
|---|---|---|---|
| 敷金/礼金 | なし / なし | 専有面積 | 18.07m² |
| 間取り | 1K | 階建 | 4階/5階建 |
360度パノラマ
CITY WALK下板橋402の詳細
| 物件種別 | マンション | ||
|---|---|---|---|
| 賃料 | 8.8万円 | 管理費・共益費 | 0.5万円 |
| 敷金/保証金 | なし / - | 礼金/償却・敷引 | なし / - |
| 更新料 | 1ヶ月 | ||
| その他費用 | 室内清掃費用:55,000円 | ||
| 所在地 | 東京都板橋区板橋2丁目15-4 | ||
| 交通 | |||
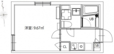
| 間取り | 1K | 間取り内訳 |
洋室 1 室 K 1 室 |
| 専有面積 | 18.07m² | バルコニー面積 | |
| 築年月(築年数) | 2025年11月(新築) | 方位 | 西 |
| 建物構造 | RC(鉄筋コンクリート) | 所在階/階建 | 4階/5階建 |
| 総戸数 | 12戸 | 駐車場 | 無 |
| 保険料 | 要 18,000円 2年 | 契約期間 | 2年間 |
| 現況(予定年月) | 即時 | ||
| 管理 | |||
| 設備・条件 | 2階以上、角部屋、バス・トイレ別、温水洗浄便座、浴室乾燥機、室内洗濯機置き場、エアコン、即入居可、礼金なし、敷金なし、360°パノラマ有り、インターネット対応、オートロック、TVドアホン、防犯カメラ、宅配ボックス、都市ガス、デザイナーズ | ||
| 備考 | 24時間安心サポート1100円(月額) 解約予告2ヶ月前。短期解約違約金:1年未満は総賃料の2ヶ月分、1年以上2年未満は総賃料の1ヶ月分。お車でご案内します。お気軽にお問い合わせ下さい。 | ||
| 周辺施設 |
コンビニ距離340m、スーパー距離193m、病院距離351m |
||
| 物件番号 | 961304 | 取引態様 | 仲介 |
| 情報更新日 | 2026年01月31日 | ||
| 物件番号 | |||
敷金・礼金・家賃・入居時期時期など、何でもご相談ください!
山手線・京浜東北線の2路線が使える便利な街・田端!
ハウス・トゥ・ハウス田端店で元気にお待ちしております!







