GRAN PASEO上野御徒町502 5階 | 2LDK | 25.9万円
敷金礼金なしで初期費用抑えられます♪
| 賃料 | 25.9万円 | 管理費・共益費 | 2万円 |
|---|---|---|---|
| 敷金/礼金 | なし / なし | 専有面積 | 48.76m² |
| 間取り | 2LDK | 階建 | 5階/10階建 |
GRAN PASEO上野御徒町502の詳細
| 物件種別 | マンション | ||
|---|---|---|---|
| 賃料 | 25.9万円 | 管理費・共益費 | 2万円 |
| 敷金/保証金 | なし / - | 礼金/償却・敷引 | なし / - |
| 更新料 | 1ヶ月 | ||
| その他費用 |
安心入居サポート(2年一括):22,000円 室内清掃費用:66,000円 |
||
| 所在地 | 東京都台東区台東2丁目20-7 | ||
| 交通 | |||
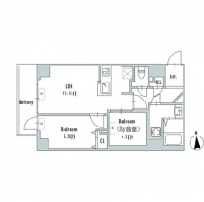
| 間取り | 2LDK | 間取り内訳 |
LDK 11.1 畳 洋室 4.1 畳 洋室 5.3 畳 |
| 専有面積 | 48.76m² | バルコニー面積 | |
| 築年月(築年数) | 2025年05月(新築) | 方位 | 西 |
| 建物構造 | RC(鉄筋コンクリート) | 所在階/階建 | 5階/10階建 |
| 総戸数 | 18戸 | 駐車場 | |
| 保険料 | 要 23,000円 2年 | 契約期間 | 2年間 |
| 現況(予定年月) | 2025年11月上旬 | ||
| 管理 | |||
| 設備・条件 | 2階以上、角部屋、システムキッチン、カウンターキッチン、バス・トイレ別、温水洗浄便座、浴室乾燥機、追い焚き、室内洗濯機置き場、フローリング、エアコン、ウォークインクローゼット、バルコニー、礼金なし、敷金なし、楽器相談、2人入居相談、仲介手数料無料、インターネット対応、BSアンテナ、CSアンテナ、オートロック、TVドアホン、宅配ボックス、バイク置き場、駐輪場、エレベータ、都市ガス | ||
| 備考 | ※退去時ルームクリーニング費用:66000円(税込) ※退去時エアコンクリーニング費用:16500円(税込)/台 ※短期解約違約金:2年未満解約時フリーレント分の賃料及び管理費 | ||
| 周辺施設 |
コンビニ距離187m、スーパー距離50m、病院距離855m |
||
| 物件番号 | 950659 | 取引態様 | 仲介 |
| 情報更新日 | 2026年02月12日 | ||
| 物件番号 | |||
敷金・礼金・家賃・入居時期時期など、何でもご相談ください!
歴史と情緒が薫る街・西日暮里でお部屋探し♪
ハウス・トゥ・ハウス西日暮里店で元気にお待ちしております!







