DeLCCS池袋本町202 2階 | 1K | 11.8万円
池袋本町公園まで徒歩5分と近いです。セキュリティ面は、TVインターホン・オートロックなど充実してい
| 賃料 | 11.8万円 | 管理費・共益費 | 1万円 |
|---|---|---|---|
| 敷金/礼金 | なし / なし | 専有面積 | 25.37m² |
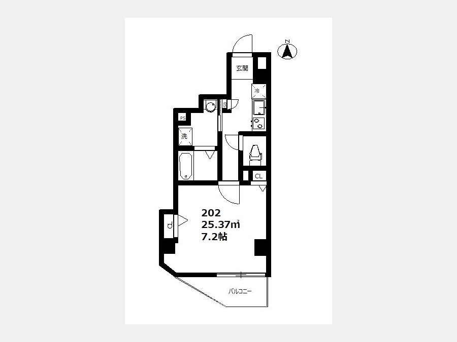
| 間取り | 1K | 階建 | 2階/9階建 |
DeLCCS池袋本町202の詳細
| 物件種別 | マンション | ||
|---|---|---|---|
| 賃料 | 11.8万円 | 管理費・共益費 | 1万円 |
| 敷金/保証金 | なし / - | 礼金/償却・敷引 | なし / - |
| 更新料 | 1.25ヶ月 | ||
| その他費用 |
アイディサポート24:16,500円 室内消毒代(任意):16,500円 クリーニング:55,000円 鍵交換費用:5,500円 室内清掃費用:55,000円 |
||
| 所在地 | 東京都豊島区池袋本町1丁目17-2 | ||
| 交通 | |||
| 間取り | 1K | 間取り内訳 |
洋室 7.2 畳 1 室 K 1 室 |
| 専有面積 | 25.37m² | バルコニー面積 | |
| 築年月(築年数) | 2016年07月(築9年) | 方位 | 南 |
| 建物構造 | 鉄骨造 | 所在階/階建 | 2階/9階建 |
| 総戸数 | 14戸 | 駐車場 | |
| 保険料 | 要 20,000円 2年 | 契約期間 | 2年間 |
| 現況(予定年月) | 2026年04月下旬 | ||
| 管理 | |||
| 設備・条件 | 2階以上、南向き部屋、システムキッチン、バス・トイレ別、温水洗浄便座、浴室乾燥機、室内洗濯機置き場、エアコン、バルコニー、礼金なし、敷金なし、仲介手数料無料、インターネット対応、CATV、オートロック、TVドアホン、宅配ボックス、エレベータ、都市ガス | ||
| 備考 | 解約予告1ヶ月前。 更新事務手数料5500円。 自転車駐輪場無料。 バイク駐輪場相談※現地にてサイズ確認をしてください。 | ||
| 周辺施設 |
コンビニ距離225m、スーパー距離150m、病院距離521m |
||
| 物件番号 | 948420 | 取引態様 | 仲介 |
| 情報更新日 | 2026年03月14日 | ||
| 物件番号 | |||
敷金・礼金・家賃・入居時期時期など、何でもご相談ください!
山手線・京浜東北線の2路線が使える便利な街・田端!
ハウス・トゥ・ハウス田端店で元気にお待ちしております!







