ルフォンプログレ本郷三丁目903 9階 | 1LDK | 20.8万円
都営大江戸線本郷三丁目駅周辺への引っ越しをお考えなら「ルフォンプログレ本郷三丁目」。すぐ近く(徒歩3
| 賃料 | 20.8万円 | 管理費・共益費 | 1.2万円 |
|---|---|---|---|
| 敷金/礼金 | 1ヶ月 / なし | 専有面積 | 31.12m² |
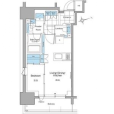
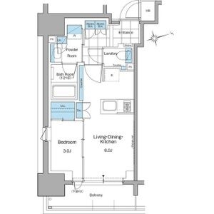
| 間取り | 1LDK | 階建 | 9階/14階建(B1階) |
ルフォンプログレ本郷三丁目903の詳細
| 物件種別 | マンション | ||
|---|---|---|---|
| 賃料 | 20.8万円 | 管理費・共益費 | 1.2万円 |
| 敷金/保証金 | 1ヶ月 / - | 礼金/償却・敷引 | なし / - |
| 更新料 | - | ||
| その他費用 | - | ||
| 所在地 | 東京都文京区本郷3丁目25-6 | ||
| 交通 | |||
| 間取り | 1LDK | 間取り内訳 |
LDK 8 畳 洋室 3 畳 |
| 専有面積 | 31.12m² | バルコニー面積 | |
| 築年月(築年数) | 2025年11月(新築) | 方位 | 東 |
| 建物構造 | RC(鉄筋コンクリート) | 所在階/階建 | 9階/14階建(B1階) |
| 総戸数 | 59戸 | 駐車場 | |
| 保険料 | 要 16,550円 2年 | 契約期間 | 2年間 |
| 現況(予定年月) | 即時 | ||
| 管理 | |||
| 設備・条件 | 2階以上、バス・トイレ別、温水洗浄便座、浴室乾燥機、室内洗濯機置き場、エアコン、バルコニー、即入居可、礼金なし、ペット相談、BSアンテナ、CSアンテナ、オートロック、TVドアホン、防犯カメラ、宅配ボックス、エレベータ | ||
| 備考 | ■ペット相談: ペット飼育時敷金1ヶ月分積増 小型犬又は猫1匹迄◆※細則遵守 ■フリーレント1カ月※賃料のみ・1年未満解約時賃料1ヵ月分違約金有 ■定借2年※一部法人契約:普通借相談可※再契約は貸主・借主協議の上相談可(再契約時:再契約料1ヶ月 ■指定保証会社利用必須※一部法人契約除く・敷金積増1ヶ月 ■礼金0ヶ月※1年未満解約時賃料1ヶ月分違約金有 | ||
| 周辺施設 |
コンビニ距離94m、スーパー距離303m、病院距離500m |
||
| 物件番号 | 983101 | 取引態様 | 仲介 |
| 情報更新日 | 2026年01月29日 | ||
| 物件番号 | |||
敷金・礼金・家賃・入居時期時期など、何でもご相談ください!
JR山手線・巣鴨駅から徒歩1分!
ハウス・トゥ・ハウス巣鴨店で元気にお待ちしております!







