ザ・パークハビオ蕨903 9階 | 1LDK | 12.3万円
| 賃料 | 12.3万円 | 管理費・共益費 | 2万円 |
|---|---|---|---|
| 敷金/礼金 | 1ヶ月 / なし | 専有面積 | 32.38m² |
| 間取り | 1LDK | 階建 | 9階/10階建 |
ザ・パークハビオ蕨903の詳細
| 物件種別 | マンション | ||
|---|---|---|---|
| 賃料 | 12.3万円 | 管理費・共益費 | 2万円 |
| 敷金/保証金 | 1ヶ月 / - | 礼金/償却・敷引 | なし / - |
| 更新料 | 1ヶ月 | ||
| その他費用 | 駆付けサポート24/2年:16,500円 | ||
| 所在地 | 埼玉県蕨市塚越1丁目6-4 | ||
| 交通 |
JR京浜東北・根岸線「蕨駅」 徒歩3分 JR京浜東北・根岸線「西川口駅」 徒歩24分 |
||
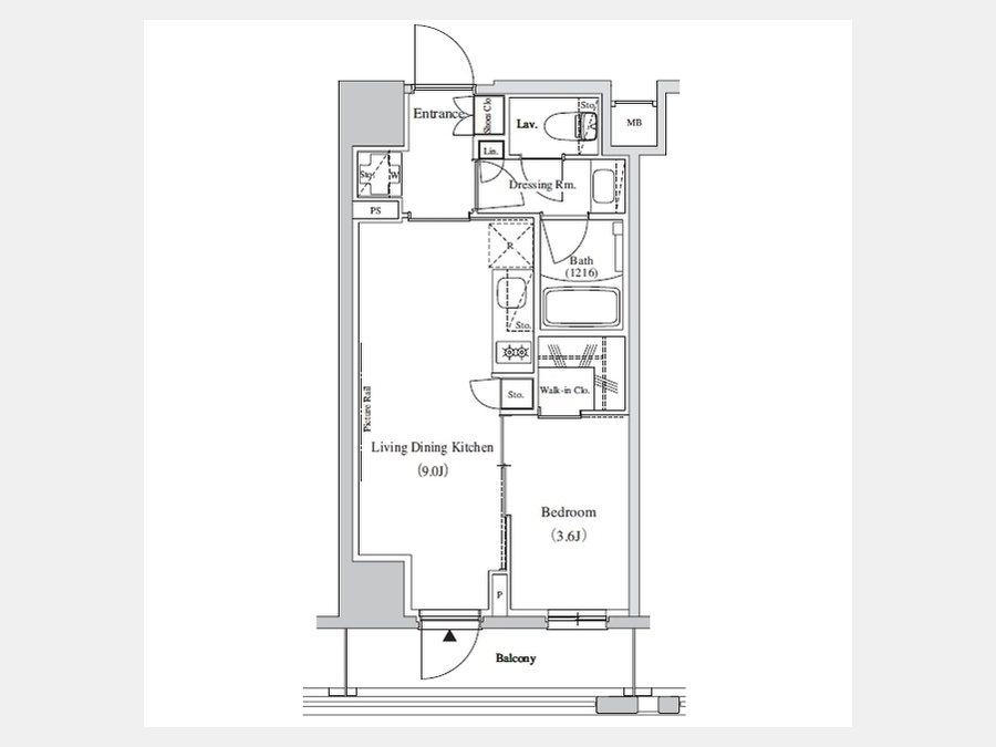
| 間取り | 1LDK | 間取り内訳 |
洋室 3.6 畳 LDK 9 畳 |
| 専有面積 | 32.38m² | バルコニー面積 | |
| 築年月(築年数) | 2025年11月(新築) | 方位 | 北東 |
| 建物構造 | RC(鉄筋コンクリート) | 所在階/階建 | 9階/10階建 |
| 総戸数 | - | 駐車場 |
空有-台/-38,500円 サイズ制限有 |
| 保険料 | 要 | 契約期間 | 2年間 |
| 現況(予定年月) | 即時 | ||
| 管理 | |||
| 設備・条件 | 2階以上、バス・トイレ別、温水洗浄便座、浴室乾燥機、追い焚き、室内洗濯機置き場、フローリング、エアコン、ウォークインクローゼット、バルコニー、即入居可、礼金なし、ペット相談、楽器相談、事務所相談、2人入居相談、インターネット対応、オートロック、TVドアホン、防犯カメラ、宅配ボックス、バイク置き場、駐輪場、エレベータ、都市ガス | ||
| 備考 | |||
| 周辺施設 |
コンビニ距離173m、スーパー距離228m、病院距離1,438m |
||
| 物件番号 | 984215 | 取引態様 | 仲介 |
| 情報更新日 | 2026年02月02日 | ||
| 物件番号 | |||
敷金・礼金・家賃・入居時期時期など、何でもご相談ください!
2024年12月新規オープン!南浦和駅東口から徒歩1分♪
ハウス・トゥ・ハウス南浦和店で元気にお待ちしております!







