ロイヤルパークス赤羽ノース420 4階 | 1DK | 15.1万円
フリーレント1ヶ月!2025年10月築のマンションです!
| 賃料 | 15.1万円 | 管理費・共益費 | 1.5万円 |
|---|---|---|---|
| 敷金/礼金 | なし / なし | 専有面積 | 32.55m² |
| 間取り | 1DK | 階建 | 4階/10階建 |
ロイヤルパークス赤羽ノース420の詳細
| 物件種別 | マンション | ||
|---|---|---|---|
| 賃料 | 15.1万円 | 管理費・共益費 | 1.5万円 |
| 敷金/保証金 | なし / - | 礼金/償却・敷引 | なし / - |
| 更新料 | 1ヶ月 | ||
| その他費用 | 室内清掃費用:48,400円 | ||
| 所在地 | 東京都北区神谷3丁目15-5 | ||
| 交通 |
JR京浜東北・根岸線「赤羽駅」 徒歩17分 |
||
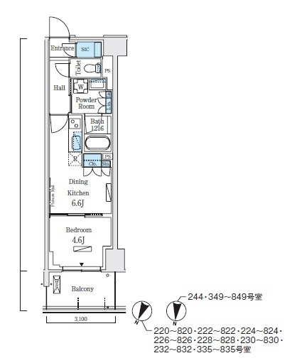
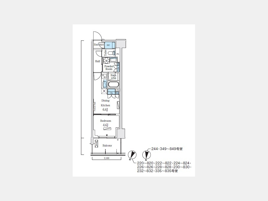
| 間取り | 1DK | 間取り内訳 |
DK 6.6 畳 洋室 4.6 畳 |
| 専有面積 | 32.55m² | バルコニー面積 | |
| 築年月(築年数) | 2025年09月(新築) | 方位 | 北西 |
| 建物構造 | RC(鉄筋コンクリート) | 所在階/階建 | 4階/10階建 |
| 総戸数 | - | 駐車場 | |
| 保険料 | 要 | 契約期間 | 2年間 |
| 現況(予定年月) | 即時 | ||
| 管理 | 管理人/巡回、 | ||
| 設備・条件 | 2階以上、システムキッチン、バス・トイレ別、浴室乾燥機、追い焚き、室内洗濯機置き場、フローリング、エアコン、シューズインクローゼット、バルコニー、即入居可、礼金なし、敷金なし、保証人不要、ペット相談、楽器相談、2人入居相談、インターネット対応、BSアンテナ、CSアンテナ、オートロック、TVドアホン、宅配ボックス、駐輪場、エレベータ、都市ガス | ||
| 備考 | 口座振替手数料/月 220円(月額) 短期解約違約金あり/ペット飼育時敷金1ヶ月追加/ピアノ相談/掲載情報と現況が異なる場合は、現況を優先とします | ||
| 周辺施設 |
コンビニ距離402m、スーパー距離316m、病院距離566m |
||
| 物件番号 | 999231 | 取引態様 | 仲介 |
| 情報更新日 | 2026年03月05日 | ||
| 物件番号 | |||
敷金・礼金・家賃・入居時期時期など、何でもご相談ください!
3路線3駅利用可の板橋エリアでお部屋探し♪
ハウス・トゥ・ハウス板橋東口店で元気にお待ちしております!







