REGOLITH板橋本町304 3階 | 1K | 10.9万円
| 賃料 | 10.9万円 | 管理費・共益費 | 1万円 |
|---|---|---|---|
| 敷金/礼金 | なし / 1ヶ月 | 専有面積 | 25.96m² |
| 間取り | 1K | 階建 | 3階/5階建 |
360度パノラマ
REGOLITH板橋本町304の詳細
| 物件種別 | マンション | ||
|---|---|---|---|
| 賃料 | 10.9万円 | 管理費・共益費 | 1万円 |
| 敷金/保証金 | なし / - | 礼金/償却・敷引 | 1ヶ月 / - |
| 更新料 | 1ヶ月 | ||
| その他費用 |
24時間サポート:1,000円 契約事務手数料:11,000円 顔認証セキュリティサービス登録料:11,000円 室内清掃費用:38,500円 |
||
| 所在地 | 東京都板橋区双葉町40-21 | ||
| 交通 | |||
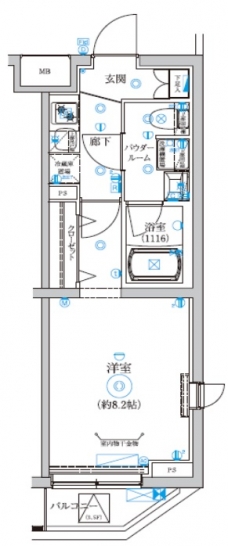
| 間取り | 1K | 間取り内訳 |
洋室 8.2 畳 |
| 専有面積 | 25.96m² | バルコニー面積 | |
| 築年月(築年数) | 2025年10月(新築) | 方位 | 東 |
| 建物構造 | RC(鉄筋コンクリート) | 所在階/階建 | 3階/5階建 |
| 総戸数 | - | 駐車場 | 空無 |
| 保険料 | 要 15,000円 2年 | 契約期間 | 2年間 |
| 現況(予定年月) | 即時 | ||
| 管理 | |||
| 設備・条件 | 2階以上、角部屋、システムキッチン、バス・トイレ別、温水洗浄便座、浴室乾燥機、室内洗濯機置き場、エアコン、バルコニー、即入居可、敷金なし、ペット相談、360°パノラマ有り、インターネット対応、BSアンテナ、CSアンテナ、オートロック、TVドアホン、防犯カメラ、宅配ボックス、駐輪場、エレベータ、都市ガス | ||
| 備考 | 24時間サポート1000円(月額) 口座振替手数料440円(月額) クレディセゾン事務手数料220円(月額) | ||
| 周辺施設 |
コンビニ距離620m、スーパー距離337m、病院距離724m |
||
| 物件番号 | 937240 | 取引態様 | 仲介 |
| 情報更新日 | 2026年01月21日 | ||
| 物件番号 | |||
敷金・礼金・家賃・入居時期時期など、何でもご相談ください!
板橋でのお部屋探しなら仲宿商店街にある当店へ!
ハウス・トゥ・ハウス板橋区役所前店で元気にお待ちしております!







