ヴェルステージ大宮807 8階 | 1K | 7.9万円
| 賃料 | 7.9万円 | 管理費・共益費 | 1万円 |
|---|---|---|---|
| 敷金/礼金 | なし / 1ヶ月 | 専有面積 | 22.68m² |
| 間取り | 1K | 階建 | 8階/9階建 |
ヴェルステージ大宮807の詳細
| 物件種別 | マンション | ||
|---|---|---|---|
| 賃料 | 7.9万円 | 管理費・共益費 | 1万円 |
| 敷金/保証金 | なし / - | 礼金/償却・敷引 | 1ヶ月 / - |
| 更新料 | 1ヶ月 | ||
| その他費用 |
契約事務手数料:11,000円 鍵交換費用:33,000円 室内清掃費用:56,500円 |
||
| 所在地 | 埼玉県さいたま市大宮区宮町4丁目17-1 | ||
| 交通 | |||
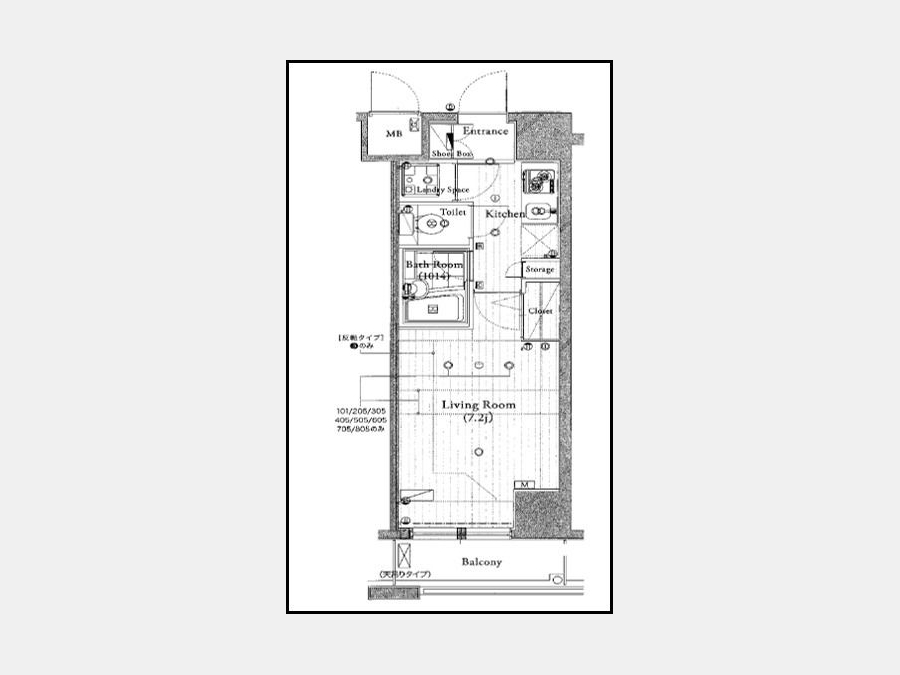
| 間取り | 1K | 間取り内訳 | |
| 専有面積 | 22.68m² | バルコニー面積 | |
| 築年月(築年数) | 2010年07月(築15年) | 方位 | - |
| 建物構造 | RC(鉄筋コンクリート) | 所在階/階建 | 8階/9階建 |
| 総戸数 | - | 駐車場 | |
| 保険料 | 要 20,000円 2年 | 契約期間 | 2年間 |
| 現況(予定年月) | 相談 | ||
| 管理 | |||
| 設備・条件 | 2階以上、システムキッチン、バス・トイレ別、室内洗濯機置き場、バルコニー、分譲賃貸、敷金なし、保証人不要、オートロック、TVドアホン、防犯カメラ、宅配ボックス、エレベータ、都市ガス | ||
| 備考 | 24時間サポート費用1100円(月額) | ||
| 周辺施設 |
コンビニ距離461m、スーパー距離628m |
||
| 物件番号 | 966933 | 取引態様 | 仲介 |
| 情報更新日 | 2025年12月28日 | ||
| 物件番号 | |||
敷金・礼金・家賃・入居時期時期など、何でもご相談ください!
2024年12月新規オープン!南浦和駅東口から徒歩1分♪
ハウス・トゥ・ハウス南浦和店で元気にお待ちしております!







