Ludens椎名町102 1階 | 1R | 9.2万円
住まい探しはハウス・トゥ・ハウス・ネットサービス/板橋東口店で!当社では豊島区の賃貸情報を扱ってお
| 賃料 | 9.2万円 | 管理費・共益費 | 0.5万円 |
|---|---|---|---|
| 敷金/礼金 | なし / なし | 専有面積 | 20.24m² |
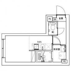
| 間取り | 1R | 階建 | 1階/4階建 |
Ludens椎名町102の詳細
| 物件種別 | マンション | ||
|---|---|---|---|
| 賃料 | 9.2万円 | 管理費・共益費 | 0.5万円 |
| 敷金/保証金 | なし / - | 礼金/償却・敷引 | なし / - |
| 更新料 | 1ヶ月 | ||
| その他費用 |
24時間安心サポート:16,500円 預かりクリーニング代:44,000円 |
||
| 所在地 | 東京都豊島区南長崎3丁目35-4 | ||
| 交通 | |||
| 間取り | 1R | 間取り内訳 |
洋室 |
| 専有面積 | 20.24m² | バルコニー面積 | |
| 築年月(築年数) | 2025年09月(新築) | 方位 | - |
| 建物構造 | RC(鉄筋コンクリート) | 所在階/階建 | 1階/4階建 |
| 総戸数 | 12戸 | 駐車場 | 無 |
| 保険料 | 要 18,000円 2年 | 契約期間 | 2年間 |
| 現況(予定年月) | 2025年10月下旬 | ||
| 管理 | |||
| 設備・条件 | 1階、角部屋、バス・トイレ別、温水洗浄便座、浴室乾燥機、室内洗濯機置き場、エアコン、礼金なし、敷金なし、インターネット対応、オートロック、TVドアホン、防犯カメラ、宅配ボックス、都市ガス | ||
| 備考 | 更新事務手数料、5500円。 退去時エアコンクリーニング費用16500円/台。 1年未満の解約は賃料等2ヶ月分、2年未満の解約は賃料等1ヶ月分の短期解約違約金あり。 | ||
| 周辺施設 |
コンビニ距離468m、スーパー距離427m、病院距離1,145m |
||
| 物件番号 | 930952 | 取引態様 | 仲介 |
| 情報更新日 | 2025年12月25日 | ||
| 物件番号 | |||
敷金・礼金・家賃・入居時期時期など、何でもご相談ください!
3路線3駅利用可の板橋エリアでお部屋探し♪
ハウス・トゥ・ハウス板橋東口店で元気にお待ちしております!







