メインステージ板橋EAST201 2階 | 1K | 12万円
TVモニター付きインターホン!便利な宅配ボックス!
| 賃料 | 12万円 | 管理費・共益費 | 1.5万円 |
|---|---|---|---|
| 敷金/礼金 | なし / 1ヶ月 | 専有面積 | 25.66m² |
| 間取り | 1K | 階建 | 2階/8階建 |
メインステージ板橋EAST201の詳細
| 物件種別 | マンション | ||
|---|---|---|---|
| 賃料 | 12万円 | 管理費・共益費 | 1.5万円 |
| 敷金/保証金 | なし / - | 礼金/償却・敷引 | 1ヶ月 / - |
| 更新料 | 1.5ヶ月 | ||
| その他費用 |
AMLクラブサポート費用(2年):16,500円 預かりクリーニング代:49,500円 鍵交換費用:29,700円 |
||
| 所在地 | 東京都豊島区上池袋4丁目43-12 | ||
| 交通 | |||
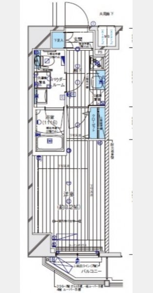
| 間取り | 1K | 間取り内訳 |
洋室 8.2 畳 1 室 |
| 専有面積 | 25.66m² | バルコニー面積 | |
| 築年月(築年数) | 2019年07月(築6年) | 方位 | 東 |
| 建物構造 | RC(鉄筋コンクリート) | 所在階/階建 | 2階/8階建 |
| 総戸数 | 64戸 | 駐車場 | 無 |
| 保険料 | 要 16,000円 2年 | 契約期間 | 2年間 |
| 現況(予定年月) | 2026年04月中旬 | ||
| 管理 | |||
| 設備・条件 | 2階以上、システムキッチン、バス・トイレ別、温水洗浄便座、浴室乾燥機、室内洗濯機置き場、フローリング、エアコン、バルコニー、分譲賃貸、敷金なし、保証人不要、BSアンテナ、CSアンテナ、CATV、オートロック、TVドアホン、防犯カメラ、宅配ボックス、バイク置き場、駐輪場、エレベータ、都市ガス | ||
| 備考 | 更新事務手数料:2200円 ペット飼育可能:敷金1ヶ月追加 引越業者指定有 電力業者指定有 解約予告50日前 退去時:エアコンクリーニング費用16500円/台 1年未満の解約の場合、総賃料1ヶ月分・半年未満は総賃料の2か月分の違約金あり。 | ||
| 周辺施設 |
コンビニ距離106m、スーパー距離275m、病院距離775m |
||
| 物件番号 | 983278 | 取引態様 | 仲介 |
| 情報更新日 | 2026年01月29日 | ||
| 物件番号 | |||
敷金・礼金・家賃・入居時期時期など、何でもご相談ください!
3路線3駅利用可の板橋エリアでお部屋探し♪
ハウス・トゥ・ハウス板橋東口店で元気にお待ちしております!







