ザ・パークワンズ神田502 5階 | 1R | 16.2万円
セキュリティ面は、TVインターホン・オートロックなど充実しているので、防犯対策もばっちりです。室内設
| 賃料 | 16.2万円 | 管理費・共益費 | 1万円 |
|---|---|---|---|
| 敷金/礼金 | 1ヶ月 / 1ヶ月 | 専有面積 | 28.69m² |
| 間取り | 1R | 階建 | 5階/12階建 |
ザ・パークワンズ神田502の詳細
| 物件種別 | マンション | ||
|---|---|---|---|
| 賃料 | 16.2万円 | 管理費・共益費 | 1万円 |
| 敷金/保証金 | 1ヶ月 / - | 礼金/償却・敷引 | 1ヶ月 / - |
| 更新料 | 1ヶ月 | ||
| その他費用 | - | ||
| 所在地 | 東京都千代田区神田西福田町2-6 | ||
| 交通 | |||
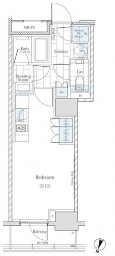
| 間取り | 1R | 間取り内訳 |
洋室 9.7 畳 |
| 専有面積 | 28.69m² | バルコニー面積 | |
| 築年月(築年数) | 2018年11月(築7年) | 方位 | 北西 |
| 建物構造 | RC(鉄筋コンクリート) | 所在階/階建 | 5階/12階建 |
| 総戸数 | - | 駐車場 | 無 |
| 保険料 | 要 | 契約期間 | 2年間 |
| 現況(予定年月) | 2026年02月上旬 | ||
| 管理 | |||
| 設備・条件 | 2階以上、バス・トイレ別、温水洗浄便座、浴室乾燥機、追い焚き、室内洗濯機置き場、フローリング、エアコン、バルコニー、ペット相談、楽器相談、事務所相談、インターネット対応、BSアンテナ、CSアンテナ、オートロック、TVドアホン、防犯カメラ、宅配ボックス、駐輪場、エレベータ、都市ガス | ||
| 備考 | ■ペット相談可:小型犬・猫計2匹まで、敷金1ヶ月積増 ■楽器相談可:10~20時、連続演奏1時間以内、消音機能付限定 ■SOHO相談可:登記・不特定多数来訪業種・営業看板設置何れも不可、敷金1ヶ月積増 ■2ヶ月前解約 ■退去時費用:室内クリーニング費用・エアコン洗浄費用借主負担 | ||
| 周辺施設 |
コンビニ距離903m、スーパー距離978m、病院距離1,126m |
||
| 物件番号 | 985468 | 取引態様 | 仲介 |
| 情報更新日 | 2026年02月02日 | ||
| 物件番号 | |||
敷金・礼金・家賃・入居時期時期など、何でもご相談ください!
山手線・東京メトロ南北線沿線でのお部屋探しなら
当店にお任せください!
ハウス・トゥ・ハウス駒込店で元気にお待ちしております!







