メゾンドビューラシーヌⅢ202 2階 | 1LDK | 15.5万円
2025年8月築の築浅物件!
| 賃料 | 15.5万円 | 管理費・共益費 | 0.77万円 |
|---|---|---|---|
| 敷金/礼金 | なし / 1ヶ月 | 専有面積 | 39.72m² |
| 間取り | 1LDK | 階建 | 2階/3階建(B3階) |
メゾンドビューラシーヌⅢ202の詳細
| 物件種別 | マンション | ||
|---|---|---|---|
| 賃料 | 15.5万円 | 管理費・共益費 | 0.77万円 |
| 敷金/保証金 | なし / - | 礼金/償却・敷引 | 1ヶ月 / - |
| 更新料 | - | ||
| その他費用 |
24時間生活サポート :16,500円 室内清掃費用:65,000円 |
||
| 所在地 | 東京都北区赤羽西2丁目16-8 | ||
| 交通 |
JR京浜東北・根岸線「赤羽駅」 徒歩8分 |
||
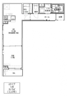
| 間取り | 1LDK | 間取り内訳 |
洋室 5 畳 LDK 10.2 畳 |
| 専有面積 | 39.72m² | バルコニー面積 | |
| 築年月(築年数) | 2025年08月(築1年以内) | 方位 | - |
| 建物構造 | SRC(鉄骨鉄筋コンクリート) | 所在階/階建 | 2階/3階建(B3階) |
| 総戸数 | - | 駐車場 | |
| 保険料 | 要 18,000円 2年 | 契約期間 | 2年間 |
| 現況(予定年月) | 2026年02月下旬 | ||
| 管理 | |||
| 設備・条件 | 2階以上、角部屋、システムキッチン、カウンターキッチン、バス・トイレ別、温水洗浄便座、浴室乾燥機、室内洗濯機置き場、フローリング、エアコン、ウォークインクローゼット、バルコニー、敷金なし、保証人不要、2人入居相談、インターネット対応、駐輪場、都市ガス、低層マンション | ||
| 備考 | 口座振替手数料440円(月額) 更新事務手数料22000円/掲載情報と現況が異なる場合は、現況を優先とします。 | ||
| 周辺施設 |
コンビニ距離52m、スーパー距離196m、病院距離273m |
||
| 物件番号 | 983595 | 取引態様 | 仲介 |
| 情報更新日 | 2026年01月30日 | ||
| 物件番号 | |||
敷金・礼金・家賃・入居時期時期など、何でもご相談ください!
山手線・京浜東北線の2路線が使える便利な街・田端!
ハウス・トゥ・ハウス田端店で元気にお待ちしております!







