コラゾン0201 2階 | 1R | 7.2万円
医療法人慈光会 八木病院まで394mです。来客時にはTVインターホンで訪問者の顔を確認することがき
| 賃料 | 7.2万円 | 管理費・共益費 | 0.4万円 |
|---|---|---|---|
| 敷金/礼金 | 1ヶ月 / 1ヶ月 | 専有面積 | 12.10m² |
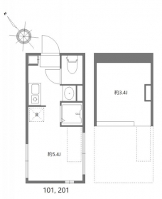
| 間取り | 1R | 階建 | 2階/2階建 |
360度パノラマ
コラゾン0201の詳細
| 物件種別 | アパート | ||
|---|---|---|---|
| 賃料 | 7.2万円 | 管理費・共益費 | 0.4万円 |
| 敷金/保証金 | 1ヶ月 / - | 礼金/償却・敷引 | 1ヶ月 / - |
| 更新料 | 1.5ヶ月 | ||
| その他費用 |
プレミアデスク(税込/2年):22,000円 町内会費/月額:300円 |
||
| 所在地 | 東京都北区東十条6丁目5-3 | ||
| 交通 |
JR京浜東北・根岸線「東十条駅」 徒歩10分 JR京浜東北・根岸線「赤羽駅」 徒歩13分 |
||
| 間取り | 1R | 間取り内訳 | |
| 専有面積 | 12.10m² | バルコニー面積 | |
| 築年月(築年数) | 2024年07月(築1年) | 方位 | 北 |
| 建物構造 | 木造 | 所在階/階建 | 2階/2階建 |
| 総戸数 | - | 駐車場 |
無 |
| 保険料 | 要 16,000円 2年 | 契約期間 | 2年間 |
| 現況(予定年月) | 2026年03月 | ||
| 管理 | 管理会社/株式会社シノケンファシリティーズ 03-5777-0085 | ||
| 設備・条件 | 2階以上、最上階、温水洗浄便座、室内洗濯機置き場、フローリング、エアコン、360°パノラマ有り、インターネット対応、TVドアホン、プロパンガス | ||
| 備考 | プレミアデスク代の中に登録料6600円を含みます。短期解約違約金:1年未満総賃料2ヶ月分 解約予告2ヶ月前。本契約は電子契約になります。インターネット使用料は、無料のサービスと致しますが、将来変更があり、プロバイダ料金などが別途かかることがあります。掲載情報と現況が異なる場合は、現況を優先とします。 | ||
| 周辺施設 |
コンビニ距離173m、スーパー距離464m、病院距離394m |
||
| 物件番号 | 977683 | 取引態様 | 仲介 |
| 情報更新日 | 2026年03月10日 | ||
| 物件番号 | |||
敷金・礼金・家賃・入居時期時期など、何でもご相談ください!
3路線3駅利用可の板橋エリアでお部屋探し♪
ハウス・トゥ・ハウス板橋東口店で元気にお待ちしております!







