アーバネックス新御徒町駅前803 8階 | 1DK | 18万円
礼金なしで初期費用抑えられます♪
| 賃料 | 18万円 | 管理費・共益費 | 2万円 |
|---|---|---|---|
| 敷金/礼金 | 1ヶ月 / なし | 専有面積 | 27.30m² |
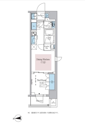
| 間取り | 1DK | 階建 | 8階/11階建 |
アーバネックス新御徒町駅前803の詳細
| 物件種別 | マンション | ||
|---|---|---|---|
| 賃料 | 18万円 | 管理費・共益費 | 2万円 |
| 敷金/保証金 | 1ヶ月 / - | 礼金/償却・敷引 | なし / - |
| 更新料 | 1ヶ月 | ||
| その他費用 | - | ||
| 所在地 | 東京都台東区台東4丁目23-4 | ||
| 交通 | |||
| 間取り | 1DK | 間取り内訳 |
DK 7.3 畳 洋室 4.4 畳 |
| 専有面積 | 27.30m² | バルコニー面積 | |
| 築年月(築年数) | 2025年07月(新築) | 方位 | 西 |
| 建物構造 | RC(鉄筋コンクリート) | 所在階/階建 | 8階/11階建 |
| 総戸数 | 27戸 | 駐車場 | 空無 |
| 保険料 | 要 21,500円 2年 | 契約期間 | 2年間 |
| 現況(予定年月) | 即時 | ||
| 管理 | |||
| 設備・条件 | 2階以上、角部屋、システムキッチン、バス・トイレ別、温水洗浄便座、浴室乾燥機、追い焚き、室内洗濯機置き場、フローリング、エアコン、床暖房、バルコニー、即入居可、礼金なし、仲介手数料無料、BSアンテナ、CSアンテナ、オートロック、TVドアホン、防犯カメラ、宅配ボックス、バイク置き場、駐輪場、エレベータ | ||
| 備考 | 1年未満解約時フリーレント相当分の違約金有り | ||
| 周辺施設 |
コンビニ距離506m、スーパー距離205m、病院距離638m |
||
| 物件番号 | 972378 | 取引態様 | 仲介 |
| 情報更新日 | 2026年02月27日 | ||
| 物件番号 | |||
敷金・礼金・家賃・入居時期時期など、何でもご相談ください!
歴史と情緒が薫る街・西日暮里でお部屋探し♪
ハウス・トゥ・ハウス西日暮里店で元気にお待ちしております!







