RELUXIA北赤羽403 4階 | 1K | 10.6万円
2025年8月完成予定の新築です!敷金なし☆初期費用抑えたい方におすすめです☆
| 賃料 | 10.6万円 | 管理費・共益費 | 1万円 |
|---|---|---|---|
| 敷金/礼金 | なし / なし | 専有面積 | 25.50m² |
| 間取り | 1K | 階建 | 4階/6階建 |
360度パノラマ
RELUXIA北赤羽403の詳細
| 物件種別 | マンション | ||
|---|---|---|---|
| 賃料 | 10.6万円 | 管理費・共益費 | 1万円 |
| 敷金/保証金 | なし / - | 礼金/償却・敷引 | なし / - |
| 更新料 | 1ヶ月 | ||
| その他費用 |
事務管理手数料:11,000円 室内清掃費用:55,000円 |
||
| 所在地 | 東京都北区浮間3丁目8-18 | ||
| 交通 | |||
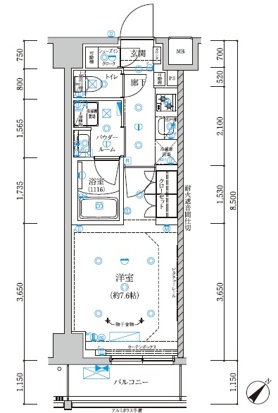
| 間取り | 1K | 間取り内訳 |
洋室 7.6 畳 |
| 専有面積 | 25.50m² | バルコニー面積 | |
| 築年月(築年数) | 2025年08月(新築) | 方位 | 南東 |
| 建物構造 | RC(鉄筋コンクリート) | 所在階/階建 | 4階/6階建 |
| 総戸数 | - | 駐車場 | |
| 保険料 | 要 15,000円 2年 | 契約期間 | 2年間 |
| 現況(予定年月) | 即時 | ||
| 管理 | |||
| 設備・条件 | システムキッチン、バス・トイレ別、温水洗浄便座、浴室乾燥機、フローリング、バルコニー、即入居可、礼金なし、敷金なし、360°パノラマ有り、保証人不要、事務所不可、2階以上、室内洗濯機置き場、エアコン、ペット相談、インターネット対応、BSアンテナ、CSアンテナ、オートロック、TVドアホン、防犯カメラ、宅配ボックス、バイク置き場、駐輪場、エレベータ、都市ガス | ||
| 備考 | 1年未満に解約の場合、賃料1ヶ月分の短期解約違約金あり。ペット飼育時敷金1ヶ月追加(償却) | ||
| 周辺施設 |
コンビニ距離72m、スーパー距離190m、病院距離407m |
||
| 物件番号 | 977612 | 取引態様 | 仲介 |
| 情報更新日 | 2026年01月19日 | ||
| 物件番号 | |||
敷金・礼金・家賃・入居時期時期など、何でもご相談ください!
3路線3駅利用可の板橋エリアでお部屋探し♪
ハウス・トゥ・ハウス板橋東口店で元気にお待ちしております!







