S-RESIDENCE東浦和agua504 5階 | 2LDK | 12.85万円
当社スタッフの豊富な経験から、住まい探しに関するお問い合わせを受け付けております。お客様のニーズにお
| 賃料 | 12.85万円 | 管理費・共益費 | 1.5万円 |
|---|---|---|---|
| 敷金/礼金 | なし / なし | 専有面積 | 51.90m² |
| 間取り | 2LDK | 階建 | 5階/7階建(B1階) |
S-RESIDENCE東浦和agua504の詳細
| 物件種別 | マンション | ||
|---|---|---|---|
| 賃料 | 12.85万円 | 管理費・共益費 | 1.5万円 |
| 敷金/保証金 | なし / - | 礼金/償却・敷引 | なし / - |
| 更新料 | 1ヶ月 | ||
| その他費用 | 室内清掃費用:80,300円 | ||
| 所在地 | 埼玉県川口市柳崎5丁目20-16 | ||
| 交通 |
JR京浜東北・根岸線「南浦和駅」 徒歩49分 |
||
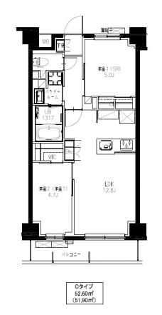
| 間取り | 2LDK | 間取り内訳 |
LDK 12.8 畳 洋室 5 畳 洋室 4.7 畳 |
| 専有面積 | 51.90m² | バルコニー面積 | |
| 築年月(築年数) | 2025年09月(新築) | 方位 | 東 |
| 建物構造 | RC(鉄筋コンクリート) | 所在階/階建 | 5階/7階建(B1階) |
| 総戸数 | 65戸 | 駐車場 | 空有-台/-13,200円 |
| 保険料 | 要 22,000円 2年 | 契約期間 | 2年間 |
| 現況(予定年月) | 即時 | ||
| 管理 | |||
| 設備・条件 | 2階以上、システムキッチン、カウンターキッチン、バス・トイレ別、温水洗浄便座、浴室乾燥機、追い焚き、室内洗濯機置き場、フローリング、エアコン、ウォークインクローゼット、バルコニー、即入居可、礼金なし、敷金なし、ペット相談、インターネット対応、BSアンテナ、CSアンテナ、オートロック、TVドアホン、防犯カメラ、宅配ボックス、バイク置き場、駐輪場、エレベータ、都市ガス | ||
| 備考 | 退去時鍵交換代33000円。ペット飼育時は、敷金1ヶ月増。退去時エアコンクリーニング費16500円/1台あたり。1年未満の解約の場合、賃料1ヶ月分の違約金あり。 | ||
| 周辺施設 |
コンビニ距離927m、スーパー距離641m、病院距離2,567m |
||
| 物件番号 | 978580 | 取引態様 | 仲介 |
| 情報更新日 | 2026年03月12日 | ||
| 物件番号 | |||
敷金・礼金・家賃・入居時期時期など、何でもご相談ください!
2024年12月新規オープン!南浦和駅東口から徒歩1分♪
ハウス・トゥ・ハウス南浦和店で元気にお待ちしております!







