フュージョン板橋本町402 4階 | 1K | 12.2万円
ローソンストア100 LS板橋本町店が239mにある物件です。エントランスと玄関の2つのロックで守ら
| 賃料 | 12.2万円 | 管理費・共益費 | 0.5万円 |
|---|---|---|---|
| 敷金/礼金 | なし / なし | 専有面積 | 27.66m² |
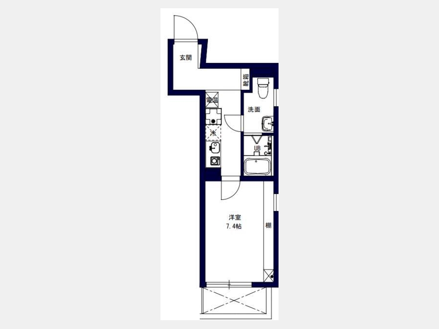
| 間取り | 1K | 階建 | 4階/5階建(B1階) |
フュージョン板橋本町402の詳細
| 物件種別 | マンション | ||
|---|---|---|---|
| 賃料 | 12.2万円 | 管理費・共益費 | 0.5万円 |
| 敷金/保証金 | なし / - | 礼金/償却・敷引 | なし / - |
| 更新料 | 1ヶ月 | ||
| その他費用 |
24時間サポート:16,500円 鍵交換費用:44,000円 |
||
| 所在地 | 東京都板橋区大和町6-8 | ||
| 交通 | |||
| 間取り | 1K | 間取り内訳 |
洋室 7.4 畳 |
| 専有面積 | 27.66m² | バルコニー面積 | |
| 築年月(築年数) | 2017年06月(築8年) | 方位 | - |
| 建物構造 | RC(鉄筋コンクリート) | 所在階/階建 | 4階/5階建(B1階) |
| 総戸数 | - | 駐車場 | |
| 保険料 | 要 20,000円 2年 | 契約期間 | 2年間 |
| 現況(予定年月) | 2026年03月中旬 | ||
| 管理 | |||
| 設備・条件 | 2階以上、角部屋、バス・トイレ別、温水洗浄便座、浴室乾燥機、室内洗濯機置き場、エアコン、礼金なし、敷金なし、オール電化、CATV、オートロック | ||
| 備考 | 「フュージョン板橋本町」:板橋区エリアの新居にピッタリ。家から富士見病院まで291mです。自分のライフスタイルに必要なお住まいをお選びください。お住まい探しをサポートしてまいります。 | ||
| 周辺施設 |
コンビニ距離151m、スーパー距離386m、病院距離291m |
||
| 物件番号 | 986577 | 取引態様 | 仲介 |
| 情報更新日 | 2026年02月07日 | ||
| 物件番号 | |||
敷金・礼金・家賃・入居時期時期など、何でもご相談ください!
JR山手線・巣鴨駅から徒歩1分!
ハウス・トゥ・ハウス巣鴨店で元気にお待ちしております!







