レジェンダリーガーデン赤羽 ウェストビュー1401 14階 | 1LDK | 17.3万円
| 賃料 | 17.3万円 | 管理費・共益費 | 0.9万円 |
|---|---|---|---|
| 敷金/礼金 | 1ヶ月 / 2ヶ月 | 専有面積 | 42.16m² |
| 間取り | 1LDK | 階建 | 14階/14階建 |
レジェンダリーガーデン赤羽 ウェストビュー1401の詳細
| 物件種別 | マンション | ||
|---|---|---|---|
| 賃料 | 17.3万円 | 管理費・共益費 | 0.9万円 |
| 敷金/保証金 | 1ヶ月 / - | 礼金/償却・敷引 | 2ヶ月 / - |
| 更新料 | 1ヶ月 | ||
| その他費用 | 鍵交換費用:22,000円 | ||
| 所在地 | 東京都北区赤羽1丁目26-4 | ||
| 交通 |
JR京浜東北・根岸線「赤羽駅」 徒歩5分 |
||
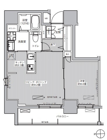
| 間取り | 1LDK | 間取り内訳 |
LDK 11.5 畳 洋室 6 畳 |
| 専有面積 | 42.16m² | バルコニー面積 | |
| 築年月(築年数) | 2019年03月(築7年) | 方位 | 西 |
| 建物構造 | RC(鉄筋コンクリート) | 所在階/階建 | 14階/14階建 |
| 総戸数 | - | 駐車場 | |
| 保険料 | 要 | 契約期間 | 2年間 |
| 現況(予定年月) | 2026年04月中旬 | ||
| 管理 | 管理人/日勤、 | ||
| 設備・条件 | 2階以上、最上階、システムキッチン、バス・トイレ別、温水洗浄便座、浴室乾燥機、追い焚き、室内洗濯機置き場、フローリング、エアコン、バルコニー、インターネット対応、オートロック、TVドアホン、宅配ボックス、駐輪場、エレベータ、都市ガス | ||
| 備考 | 掲載情報と現況が異なる場合は、現況を優先とします。 | ||
| 周辺施設 |
コンビニ距離240m、スーパー距離300m、病院距離236m |
||
| 物件番号 | 1001279 | 取引態様 | 仲介 |
| 情報更新日 | 2026年03月08日 | ||
| 物件番号 | |||
敷金・礼金・家賃・入居時期時期など、何でもご相談ください!
3路線3駅利用可の板橋エリアでお部屋探し♪
ハウス・トゥ・ハウス板橋東口店で元気にお待ちしております!







