メインステージ本蓮沼306 3階 | 2K | 10.95万円
ペット相談可♪インターネット無料♪敷金礼金なし♪
| 賃料 | 10.95万円 | 管理費・共益費 | 1.5万円 |
|---|---|---|---|
| 敷金/礼金 | なし / なし | 専有面積 | 27.78m² |
| 間取り | 2K | 階建 | 3階/5階建 |
メインステージ本蓮沼306の詳細
| 物件種別 | マンション | ||
|---|---|---|---|
| 賃料 | 10.95万円 | 管理費・共益費 | 1.5万円 |
| 敷金/保証金 | なし / - | 礼金/償却・敷引 | なし / - |
| 更新料 | 1.5ヶ月 | ||
| その他費用 |
AMLクラブサポート費:16,500円 鍵交換費用:29,700円 室内清掃費用:49,500円 |
||
| 所在地 | 東京都板橋区泉町13-9 | ||
| 交通 | |||
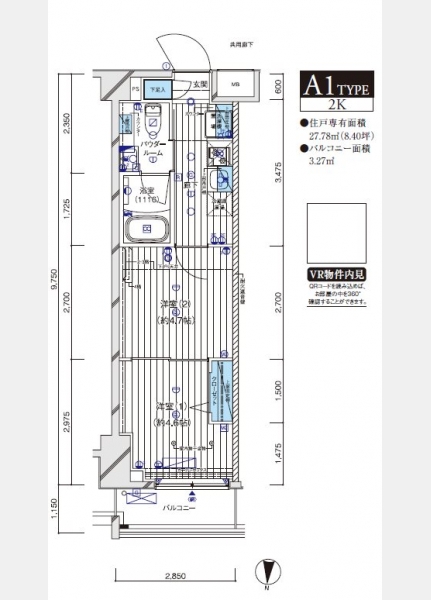
| 間取り | 2K | 間取り内訳 |
洋室 4.6 畳 洋室 4.7 畳 |
| 専有面積 | 27.78m² | バルコニー面積 | |
| 築年月(築年数) | 2021年08月(築4年) | 方位 | 北 |
| 建物構造 | RC(鉄筋コンクリート) | 所在階/階建 | 3階/5階建 |
| 総戸数 | 43戸 | 駐車場 | |
| 保険料 | 要 15,000円 2年 | 契約期間 | 2年間 |
| 現況(予定年月) | 即時 | ||
| 管理 | |||
| 設備・条件 | 2階以上、システムキッチン、バス・トイレ別、温水洗浄便座、浴室乾燥機、室内洗濯機置き場、エアコン、バルコニー、即入居可、礼金なし、敷金なし、保証人不要、ペット相談、2人入居相談、インターネット対応、BSアンテナ、CSアンテナ、オートロック、TVドアホン、防犯カメラ、宅配ボックス、バイク置き場、駐輪場、エレベータ、都市ガス | ||
| 備考 | 電力事業者指定あり。 ペット飼育時:敷金1ヶ月積み増し。 短期解約違約金有:1年未満1ヶ月、半年未満2ヶ月。 エアコンクリーニング費用:1台あたり16500円・退去時請求。 解約予告50日前。 更新事務手数料2200円。 | ||
| 周辺施設 |
コンビニ距離355m、スーパー距離352m、病院距離869m |
||
| 物件番号 | 980208 | 取引態様 | 仲介 |
| 情報更新日 | 2026年01月22日 | ||
| 物件番号 | |||
敷金・礼金・家賃・入居時期時期など、何でもご相談ください!
山手線・京浜東北線の2路線が使える便利な街・田端!
ハウス・トゥ・ハウス田端店で元気にお待ちしております!







