GENOVIA赤羽705 2階 | 2LDK | 22.2万円
敷金礼金なし☆初期費用抑えたい方におすすめです☆
| 賃料 | 22.2万円 | 管理費・共益費 | 1.5万円 |
|---|---|---|---|
| 敷金/礼金 | なし / なし | 専有面積 | 55.10m² |
| 間取り | 2LDK | 階建 | 2階/7階建 |
GENOVIA赤羽705の詳細
| 物件種別 | マンション | ||
|---|---|---|---|
| 賃料 | 22.2万円 | 管理費・共益費 | 1.5万円 |
| 敷金/保証金 | なし / - | 礼金/償却・敷引 | なし / - |
| 更新料 | 1ヶ月 | ||
| その他費用 |
契約事務手数料:11,000円 消臭抗菌サービス:11,000円 鍵交換費用:27,500円 室内清掃費用:60,500円 |
||
| 所在地 | 東京都北区赤羽3丁目28-18 | ||
| 交通 | |||
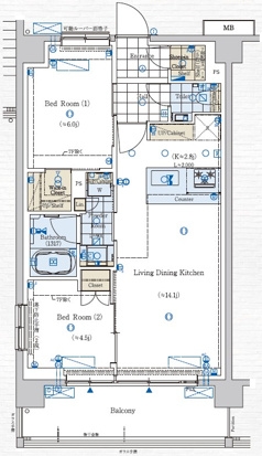
| 間取り | 2LDK | 間取り内訳 |
LDK 12.9 畳 洋室 6 畳 洋室 5 畳 |
| 専有面積 | 55.10m² | バルコニー面積 | |
| 築年月(築年数) | 2024年03月(築1年) | 方位 | 西 |
| 建物構造 | RC(鉄筋コンクリート) | 所在階/階建 | 2階/7階建 |
| 総戸数 | 76戸 | 駐車場 | |
| 保険料 | 要 | 契約期間 | 2年間 |
| 現況(予定年月) | 相談 | ||
| 管理 | |||
| 設備・条件 | 2階以上、角部屋、システムキッチン、バス・トイレ別、温水洗浄便座、浴室乾燥機、追い焚き、室内洗濯機置き場、フローリング、エアコン、ウォークインクローゼット、バルコニー、礼金なし、敷金なし、保証人不要、ペット相談、2人入居相談、インターネット対応、BSアンテナ、CSアンテナ、オートロック、TVドアホン、防犯カメラ、宅配ボックス、バイク置き場、駐輪場、エレベータ、都市ガス | ||
| 備考 | 短期解約違約金あり/2か月前解約/ペット飼育時敷金1ヶ月追加(償却)大型犬・猫・多頭飼い可/留学生・ワーホリの方敷金1ヶ月追加(解約時返還)/掲載情報と現況が異なる場合は、現況を優先とします | ||
| 周辺施設 |
コンビニ距離517m、スーパー距離879m、病院距離640m |
||
| 物件番号 | 976588 | 取引態様 | 仲介 |
| 情報更新日 | 2026年01月16日 | ||
| 物件番号 | |||
敷金・礼金・家賃・入居時期時期など、何でもご相談ください!
都心へのアクセス抜群な赤羽エリアでお部屋探し♪
ハウス・トゥ・ハウス赤羽店で元気にお待ちしております!







