ザ・パークハビオ北千住1310 13階 | 1R | 15.5万円
オートロック・TVモニターホン完備で安心のセキュリティ!
| 賃料 | 15.5万円 | 管理費・共益費 | 1.5万円 |
|---|---|---|---|
| 敷金/礼金 | 1ヶ月 / 1ヶ月 | 専有面積 | 26.73m² |
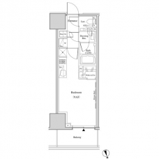
| 間取り | 1R | 階建 | 13階/14階建 |
ザ・パークハビオ北千住1310の詳細
| 物件種別 | マンション | ||
|---|---|---|---|
| 賃料 | 15.5万円 | 管理費・共益費 | 1.5万円 |
| 敷金/保証金 | 1ヶ月 / - | 礼金/償却・敷引 | 1ヶ月 / - |
| 更新料 | 1ヶ月 | ||
| その他費用 | 駆付けサポート24:16,500円 | ||
| 所在地 | 東京都足立区千住3丁目32 | ||
| 交通 | |||
| 間取り | 1R | 間取り内訳 | |
| 専有面積 | 26.73m² | バルコニー面積 | |
| 築年月(築年数) | 2025年06月(新築) | 方位 | 北 |
| 建物構造 | RC(鉄筋コンクリート) | 所在階/階建 | 13階/14階建 |
| 総戸数 | - | 駐車場 |
サイズ制限有 空き要確認 |
| 保険料 | 要 | 契約期間 | 2年間 |
| 現況(予定年月) | 即時 | ||
| 管理 | |||
| 設備・条件 | 2階以上、システムキッチン、バス・トイレ別、浴室乾燥機、追い焚き、室内洗濯機置き場、フローリング、エアコン、バルコニー、即入居可、ペット相談、楽器相談、インターネット対応、オートロック、TVドアホン、宅配ボックス、駐輪場、エレベータ、都市ガス | ||
| 備考 | ペット相談:小型犬・猫計2匹迄/敷金1ヶ月積増 楽器相談可:10~20時/連続演奏1時間以内/消音機能付限定 SOHO相談:登記・不特定多数来訪業種・営業看板設置何れも不可/敷金1ヶ月積増 解約予告2ヶ月前 退去時室内クリーニング費用、エアコン洗浄費用借主負担 | ||
| 周辺施設 |
コンビニ距離449m、スーパー距離354m、病院距離1,598m |
||
| 物件番号 | 946845 | 取引態様 | 仲介 |
| 情報更新日 | 2026年02月13日 | ||
| 物件番号 | |||
敷金・礼金・家賃・入居時期時期など、何でもご相談ください!
山手線・京浜東北線の2路線が使える便利な街・田端!
ハウス・トゥ・ハウス田端店で元気にお待ちしております!







