エクシム西巣鴨507 5階 | 1K | 7万円
安心のオートロック付き!TVモニター付きインターホン!
| 賃料 | 7万円 | 管理費・共益費 | 1.5万円 |
|---|---|---|---|
| 敷金/礼金 | なし / 1ヶ月 | 専有面積 | 21.08m² |
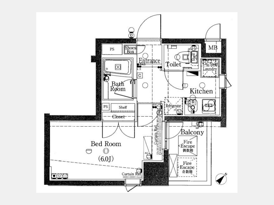
| 間取り | 1K | 階建 | 5階/10階建 |
エクシム西巣鴨507の詳細
| 物件種別 | マンション | ||
|---|---|---|---|
| 賃料 | 7万円 | 管理費・共益費 | 1.5万円 |
| 敷金/保証金 | なし / - | 礼金/償却・敷引 | 1ヶ月 / - |
| 更新料 | 1ヶ月 | ||
| その他費用 |
書類作成費用:11,000円 24時間サポート(2年):16,500円 鍵交換費用:38,500円 |
||
| 所在地 | 東京都北区滝野川1丁目81-10 | ||
| 交通 | |||
| 間取り | 1K | 間取り内訳 | |
| 専有面積 | 21.08m² | バルコニー面積 | 3.37m² |
| 築年月(築年数) | 2005年10月(築20年) | 方位 | 南東 |
| 建物構造 | RC(鉄筋コンクリート) | 所在階/階建 | 5階/10階建 |
| 総戸数 | 73戸 | 駐車場 | |
| 保険料 | 要 18,000円 2年 | 契約期間 | 2年間 |
| 現況(予定年月) | 2026年03月下旬 | ||
| 管理 | |||
| 設備・条件 | 2階以上、角部屋、システムキッチン、バス・トイレ別、温水洗浄便座、室内洗濯機置き場、フローリング、エアコン、バルコニー、分譲賃貸、敷金なし、保証人不要、インターネット対応、BSアンテナ、CSアンテナ、CATV、オートロック、TVドアホン、宅配ボックス、エレベータ、都市ガス | ||
| 備考 | 解約予告2ヶ月前 1年未満解約の場合総賃料の1ヶ月分短期解約違約金あり。更新事務手数料:新賃料の0.5ヶ月 | ||
| 周辺施設 |
コンビニ距離297m、スーパー距離140m、病院距離545m |
||
| 物件番号 | 985250 | 取引態様 | 仲介 |
| 情報更新日 | 2026年02月02日 | ||
| 物件番号 | |||
敷金・礼金・家賃・入居時期時期など、何でもご相談ください!
JR山手線・巣鴨駅から徒歩1分!
ハウス・トゥ・ハウス巣鴨店で元気にお待ちしております!







