アパートメンツ練馬北町511 5階 | 1K | 10.65万円
ローソン 東武練馬駅北口店まで徒歩2分と近場にコンビニがあるのもポイント。室内設備はシステムキッチン
| 賃料 | 10.65万円 | 管理費・共益費 | 1.2万円 |
|---|---|---|---|
| 敷金/礼金 | なし / なし | 専有面積 | 25.54m² |
| 間取り | 1K | 階建 | 5階/9階建 |
アパートメンツ練馬北町511の詳細
| 物件種別 | マンション | ||
|---|---|---|---|
| 賃料 | 10.65万円 | 管理費・共益費 | 1.2万円 |
| 敷金/保証金 | なし / - | 礼金/償却・敷引 | なし / - |
| 更新料 | 1ヶ月 | ||
| その他費用 |
契約事務手数料:7,700円 Goodプレミアムα登録料(2026年1月6日より料金改定3300円):2,200円 Goodプレミアムα年会費(2026年1月6日より料金改定16500円):12,100円 鍵交換費用:19,800円 |
||
| 所在地 | 東京都練馬区北町2丁目22-12 | ||
| 交通 | |||
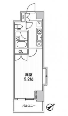
| 間取り | 1K | 間取り内訳 |
洋室 9.2 畳 1 室 K 1 室 |
| 専有面積 | 25.54m² | バルコニー面積 | |
| 築年月(築年数) | 2002年03月(築23年) | 方位 | 東 |
| 建物構造 | SRC(鉄骨鉄筋コンクリート) | 所在階/階建 | 5階/9階建 |
| 総戸数 | 82戸 | 駐車場 | 空無 |
| 保険料 | 要 22,000円 2年 | 契約期間 | 2年間 |
| 現況(予定年月) | 2026年03月下旬 | ||
| 管理 | |||
| 設備・条件 | 2階以上、角部屋、システムキッチン、バス・トイレ別、温水洗浄便座、室内洗濯機置き場、フローリング、エアコン、バルコニー、礼金なし、敷金なし、ルームシェア相談、仲介手数料無料、オートロック、宅配ボックス、バイク置き場、駐輪場、エレベータ、都市ガス | ||
| 備考 | 解約予告:2ヶ月前/最終月:日割。 ペット:鳥獣類の飼育又は一時預かり不可。 ルームクリーニング:退去時46200円、エアコンクリーニング:退去時16500円。 違約金:契約開始日より1年未満の解約は家賃の1ヶ月分。 Goodプレミアム会員、Goodプレミアムα登録料は2026年1月6日より料金改定、要確認。 自転車駐輪可 敷地内駐車場有 有料バイク置場(原付のみ)要確認。 | ||
| 周辺施設 |
コンビニ距離149m、スーパー距離44m、病院距離532m |
||
| 物件番号 | 968651 | 取引態様 | 仲介 |
| 情報更新日 | 2026年02月05日 | ||
| 物件番号 | |||
敷金・礼金・家賃・入居時期時期など、何でもご相談ください!
都営三田線でのお部屋探しなら当店にお任せください!
ハウス・トゥ・ハウス志村坂上店で元気にお待ちしております!







