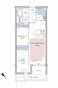
アーバネックス文京小石川102 1階 | 2LDK | 22.4万円
近くにはセブンイレブン 文京植物園前店(徒歩4分)がありちょっとした買い物に便利です。室内設備は
| 賃料 | 22.4万円 | 管理費・共益費 | 2万円 |
|---|---|---|---|
| 敷金/礼金 | 1ヶ月 / なし | 専有面積 | 40.04m² |
| 間取り | 2LDK | 階建 | 1階/5階建 |
アーバネックス文京小石川102の詳細
| 物件種別 | マンション | ||
|---|---|---|---|
| 賃料 | 22.4万円 | 管理費・共益費 | 2万円 |
| 敷金/保証金 | 1ヶ月 / - | 礼金/償却・敷引 | なし / - |
| 更新料 | 1ヶ月 | ||
| その他費用 | 鍵交換費用:22,000円 | ||
| 所在地 | 東京都文京区小石川3丁目36-9 | ||
| 交通 | |||
| 間取り | 2LDK | 間取り内訳 | |
| 専有面積 | 40.04m² | バルコニー面積 | |
| 築年月(築年数) | 2025年05月(築1年以内) | 方位 | 北東 |
| 建物構造 | RC(鉄筋コンクリート) | 所在階/階建 | 1階/5階建 |
| 総戸数 | - | 駐車場 | |
| 保険料 | 要 | 契約期間 | 2年間 |
| 現況(予定年月) | 2026年03月上旬 | ||
| 管理 | |||
| 設備・条件 | 1階、システムキッチン、カウンターキッチン、バス・トイレ別、浴室乾燥機、室内洗濯機置き場、フローリング、エアコン、床暖房、シューズインクローゼット、礼金なし、BSアンテナ、CSアンテナ、オートロック、宅配ボックス、エレベータ | ||
| 備考 | ■1年未満短期解約違約金あり:賃料1ヶ月分とフリーレントありの場合はフリーレント分(賃料+共益費) ■解約月は満額受領 | ||
| 周辺施設 |
コンビニ距離295m、スーパー距離400m、病院距離734m |
||
| 物件番号 | 974661 | 取引態様 | 仲介 |
| 情報更新日 | 2026年01月12日 | ||
| 物件番号 | |||
敷金・礼金・家賃・入居時期時期など、何でもご相談ください!
JR山手線・巣鴨駅から徒歩1分!
ハウス・トゥ・ハウス巣鴨店で元気にお待ちしております!







