宮下ハイツ203 2階 | 1K | 7.4万円
ぜひ一度見ていただきたい、「宮下ハイツ」です。ファミリーマート 亀屋赤羽西店が400mにある物件です
| 賃料 | 7.4万円 | 管理費・共益費 | 0.2万円 |
|---|---|---|---|
| 敷金/礼金 | 74,000円 / なし | 専有面積 | 17.00m² |
| 間取り | 1K | 階建 | 2階/2階建 |
宮下ハイツ203の詳細
| 物件種別 | アパート | ||
|---|---|---|---|
| 賃料 | 7.4万円 | 管理費・共益費 | 0.2万円 |
| 敷金/保証金 | 74,000円 / - | 礼金/償却・敷引 | なし / - |
| 更新料 | 1ヶ月 | ||
| その他費用 |
24時間生活サポート+保険:30,000円 鍵交換費用:22,000円 室内清掃費用:33,000円 |
||
| 所在地 | 東京都北区赤羽西4丁目26-3 | ||
| 交通 |
JR京浜東北・根岸線「赤羽駅」 徒歩11分 |
||
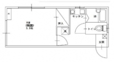
| 間取り | 1K | 間取り内訳 |
洋室 5.5 畳 |
| 専有面積 | 17.00m² | バルコニー面積 | |
| 築年月(築年数) | 1988年03月(築37年) | 方位 | - |
| 建物構造 | 木造 | 所在階/階建 | 2階/2階建 |
| 総戸数 | - | 駐車場 | 無 |
| 保険料 | 不要 | 契約期間 | 2年間 |
| 現況(予定年月) | 2025年11月中旬 | ||
| 管理 | |||
| 設備・条件 | 2階以上、最上階、角部屋、バス・トイレ別、室内洗濯機置き場、礼金なし、都市ガス | ||
| 備考 | 1年未満に解約の場合、賃料1ヶ月分の短期解約違約金あり | ||
| 周辺施設 |
コンビニ距離165m、スーパー距離549m、病院距離914m |
||
| 物件番号 | 949634 | 取引態様 | 仲介 |
| 情報更新日 | 2026年01月22日 | ||
| 物件番号 | |||
敷金・礼金・家賃・入居時期時期など、何でもご相談ください!
都心へのアクセス抜群な赤羽エリアでお部屋探し♪
ハウス・トゥ・ハウス赤羽店で元気にお待ちしております!







