プレジオ川口203 2階 | 1SLDK | 16.1万円
「プレジオ川口」:川口市エリアの新居にピッタリ。歩いて172mの場所に、ベルク 中青木店があります。
| 賃料 | 16.1万円 | 管理費・共益費 | 1.5万円 |
|---|---|---|---|
| 敷金/礼金 | なし / なし | 専有面積 | 42.06m² |
| 間取り | 1SLDK | 階建 | 2階/15階建 |
プレジオ川口203の詳細
| 物件種別 | マンション | ||
|---|---|---|---|
| 賃料 | 16.1万円 | 管理費・共益費 | 1.5万円 |
| 敷金/保証金 | なし / - | 礼金/償却・敷引 | なし / - |
| 更新料 | 1ヶ月 | ||
| その他費用 | リロレント24安心サービス:20,000円 | ||
| 所在地 | 埼玉県川口市幸町1丁目11 | ||
| 交通 |
JR京浜東北・根岸線「川口駅」 徒歩11分 |
||
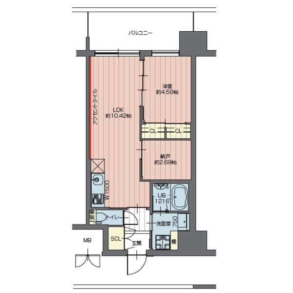
| 間取り | 1SLDK | 間取り内訳 |
洋室 4.5 畳 LDK 10.4 畳 S 2.6 畳 |
| 専有面積 | 42.06m² | バルコニー面積 | |
| 築年月(築年数) | 2025年08月(新築) | 方位 | 北 |
| 建物構造 | RC(鉄筋コンクリート) | 所在階/階建 | 2階/15階建 |
| 総戸数 | - | 駐車場 | 空有1台/-26,400円 |
| 保険料 | 要 20,000円 2年 | 契約期間 | 2年間 |
| 現況(予定年月) | 2025年09月上旬 | ||
| 管理 | |||
| 設備・条件 | 2階以上、システムキッチン、バス・トイレ別、温水洗浄便座、浴室乾燥機、追い焚き、室内洗濯機置き場、フローリング、エアコン、バルコニー、礼金なし、敷金なし、保証人不要、ペット相談、2人入居相談、インターネット対応、BSアンテナ、CSアンテナ、オートロック、TVドアホン、宅配ボックス、駐輪場、エレベータ、都市ガス | ||
| 備考 | ベルク 中青木店まで172mです。セキュリティ面は、オートロック・TVインターホンなどを備え付けているので安心して暮らせます。1LDKの物件なのでキッチンも快適でお料理も楽しい。お部屋の情報から周辺地域の情報までお任せください。当社では、地域に詳しい熟練スタッフが川口市や京浜東北線川口付近でのお部屋探しをサポート致します。 | ||
| 周辺施設 |
コンビニ距離264m、スーパー距離172m |
||
| 物件番号 | 898786 | 取引態様 | 仲介 |
| 情報更新日 | 2025年12月25日 | ||
| 物件番号 | |||
敷金・礼金・家賃・入居時期時期など、何でもご相談ください!
歴史と情緒が薫る街・西日暮里でお部屋探し♪
ハウス・トゥ・ハウス西日暮里店で元気にお待ちしております!







