ロイヤルパークス赤羽サウス 106 1階 | 1DK | 13.5万円
礼金なし☆初期費用抑えたい方におすすめです☆
| 賃料 | 13.5万円 | 管理費・共益費 | 1.5万円 |
|---|---|---|---|
| 敷金/礼金 | なし / なし | 専有面積 | 32.55m² |
| 間取り | 1DK | 階建 | 1階/7階建 |
360度パノラマ
ロイヤルパークス赤羽サウス 106の詳細
| 物件種別 | マンション | ||
|---|---|---|---|
| 賃料 | 13.5万円 | 管理費・共益費 | 1.5万円 |
| 敷金/保証金 | なし / - | 礼金/償却・敷引 | なし / - |
| 更新料 | 1ヶ月 | ||
| その他費用 | - | ||
| 所在地 | 東京都北区神谷3丁目22-1 | ||
| 交通 |
JR京浜東北・根岸線「赤羽駅」 徒歩18分 |
||
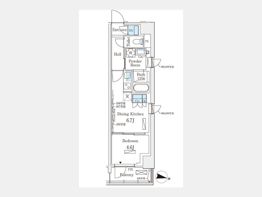
| 間取り | 1DK | 間取り内訳 |
洋室 4.6 畳 DK 6.7 畳 |
| 専有面積 | 32.55m² | バルコニー面積 | |
| 築年月(築年数) | 2025年02月(新築) | 方位 | 東 |
| 建物構造 | RC(鉄筋コンクリート) | 所在階/階建 | 1階/7階建 |
| 総戸数 | - | 駐車場 | 無 |
| 保険料 | 要 | 契約期間 | 2年間 |
| 現況(予定年月) | 即時 | ||
| 管理 | |||
| 設備・条件 | 1階、システムキッチン、バス・トイレ別、浴室乾燥機、追い焚き、室内洗濯機置き場、フローリング、エアコン、バルコニー、即入居可、礼金なし、敷金なし、ペット相談、楽器相談、360°パノラマ有り、インターネット対応、BSアンテナ、CSアンテナ、オートロック、宅配ボックス、エレベータ | ||
| 備考 | 短期解約違約金あり/ペット飼育時条件あり。/退去時に原状回復費等の負担あり。/利用可能楽器条件あり。/掲載情報と現況が異なる場合は、現況を優先とします。 | ||
| 周辺施設 |
コンビニ距離563m、スーパー距離442m、病院距離746m |
||
| 物件番号 | 826783 | 取引態様 | 仲介 |
| 情報更新日 | 2025年12月25日 | ||
| 物件番号 | |||
敷金・礼金・家賃・入居時期時期など、何でもご相談ください!
歴史と情緒が薫る街・西日暮里でお部屋探し♪
ハウス・トゥ・ハウス西日暮里店で元気にお待ちしております!







