PALACE STUDIO 文京音羽301 3階 | 1K | 8.85万円
お車でご案内いたします。お気軽にお問い合わせください。
| 賃料 | 8.85万円 | 管理費・共益費 | 1万円 |
|---|---|---|---|
| 敷金/礼金 | なし / なし | 専有面積 | 21.42m² |
| 間取り | 1K | 階建 | 3階/10階建 |
PALACE STUDIO 文京音羽301の詳細
| 物件種別 | マンション | ||
|---|---|---|---|
| 賃料 | 8.85万円 | 管理費・共益費 | 1万円 |
| 敷金/保証金 | なし / 1ヶ月 | 礼金/償却・敷引 | なし / - |
| 更新料 | 1ヶ月 | ||
| その他費用 |
契約事務手数料:5,500円 24時間臨休サポート料:16,500円 鍵交換費用:25,300円 室内清掃費用:46,200円 |
||
| 所在地 | 東京都文京区音羽1丁目27-9 | ||
| 交通 | |||
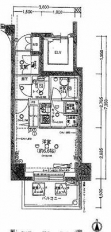
| 間取り | 1K | 間取り内訳 |
洋室 6.6 畳 1 室 |
| 専有面積 | 21.42m² | バルコニー面積 | |
| 築年月(築年数) | 2002年07月(築23年) | 方位 | - |
| 建物構造 | RC(鉄筋コンクリート) | 所在階/階建 | 3階/10階建 |
| 総戸数 | - | 駐車場 | |
| 保険料 | 要 20,000円 2年 | 契約期間 | 2年間 |
| 現況(予定年月) | 即時 | ||
| 管理 | |||
| 設備・条件 | 2階以上、バス・トイレ別、室内洗濯機置き場、フローリング、エアコン、バルコニー、即入居可、礼金なし、保証人不要、オートロック、TVドアホン、防犯カメラ、宅配ボックス、エレベータ、都市ガス | ||
| 備考 | ◆貸主指定の火災保険加入必須◆貸主指定の保証会社利用必須◆1年未満の解約時は賃料等1ヶ月分の短期解約違約金あり◆解約予告2か月前◆退去時室内清掃費46200円(税込)退去時設備機器洗浄費1台あたり11000円(税込) | ||
| 周辺施設 |
コンビニ距離138m、スーパー距離573m、病院距離1,109m |
||
| 物件番号 | 964323 | 取引態様 | 仲介 |
| 情報更新日 | 2025年12月26日 | ||
| 物件番号 | |||
敷金・礼金・家賃・入居時期時期など、何でもご相談ください!
JR山手線・巣鴨駅から徒歩1分!
ハウス・トゥ・ハウス巣鴨店で元気にお待ちしております!







