ロイジェント駒込六義園403 4階 | 1DK | 15.2万円
駒込東公園まで徒歩4分と近いです。共用部には宅配ボックス・ゴミ出し24時間OKなどが揃っており、と
| 賃料 | 15.2万円 | 管理費・共益費 | 1.5万円 |
|---|---|---|---|
| 敷金/礼金 | 1ヶ月 / なし | 専有面積 | 28.72m² |
| 間取り | 1DK | 階建 | 4階/15階建 |
ロイジェント駒込六義園403の詳細
| 物件種別 | マンション | ||
|---|---|---|---|
| 賃料 | 15.2万円 | 管理費・共益費 | 1.5万円 |
| 敷金/保証金 | 1ヶ月 / - | 礼金/償却・敷引 | なし / - |
| 更新料 | 1ヶ月 | ||
| その他費用 | 鍵交換費用:22,000円 | ||
| 所在地 | 東京都豊島区駒込1丁目3-8 | ||
| 交通 | |||
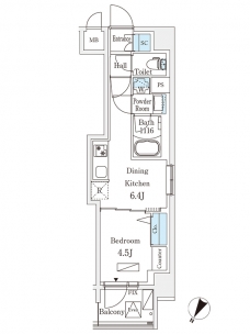
| 間取り | 1DK | 間取り内訳 |
洋室 4.5 畳 DK 6.4 畳 |
| 専有面積 | 28.72m² | バルコニー面積 | |
| 築年月(築年数) | 2025年02月(築1年) | 方位 | 北西 |
| 建物構造 | RC(鉄筋コンクリート) | 所在階/階建 | 4階/15階建 |
| 総戸数 | - | 駐車場 | |
| 保険料 | 要 | 契約期間 | 2年間 |
| 現況(予定年月) | 2026年05月下旬 | ||
| 管理 | |||
| 設備・条件 | 2階以上、システムキッチン、バス・トイレ別、浴室乾燥機、追い焚き、室内洗濯機置き場、フローリング、エアコン、シューズインクローゼット、バルコニー、礼金なし、ペット相談、BSアンテナ、CSアンテナ、オートロック、宅配ボックス、エレベータ | ||
| 備考 | 口座振替事務手数料220円(月額) ■ペット相談可:敷金1ヶ月積増 ■消音機能付き楽器のみ可 ■1年未満解約違約金(賃料+共益費)1ヶ月有 | ||
| 周辺施設 |
コンビニ距離103m、スーパー距離351m、病院距離210m |
||
| 物件番号 | 1001299 | 取引態様 | 仲介 |
| 情報更新日 | 2026年03月08日 | ||
| 物件番号 | |||
敷金・礼金・家賃・入居時期時期など、何でもご相談ください!
3路線3駅利用可の板橋エリアでお部屋探し♪
ハウス・トゥ・ハウス板橋東口店で元気にお待ちしております!







