ワーフときわ台405 4階 | 1DK | 14.4万円
東武東上線ときわ台駅周辺への引っ越しをお考えなら「ワーフときわ台」。近くにはローソンストア100 L
| 賃料 | 14.4万円 | 管理費・共益費 | 1.5万円 |
|---|---|---|---|
| 敷金/礼金 | 1ヶ月 / 1ヶ月 | 専有面積 | 36.10m² |
| 間取り | 1DK | 階建 | 4階/5階建 |
ワーフときわ台405の詳細
| 物件種別 | マンション | ||
|---|---|---|---|
| 賃料 | 14.4万円 | 管理費・共益費 | 1.5万円 |
| 敷金/保証金 | 1ヶ月 / - | 礼金/償却・敷引 | 1ヶ月 / - |
| 更新料 | 1ヶ月 | ||
| その他費用 |
プレミアデスク:16,500円 鍵交換費用:38,500円 |
||
| 所在地 | 東京都板橋区南常盤台1丁目24-12 | ||
| 交通 | |||
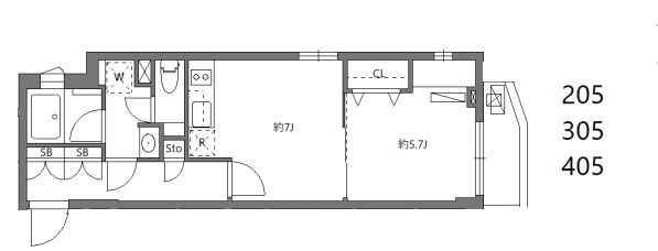
| 間取り | 1DK | 間取り内訳 |
DK 7 畳 洋室 5.7 畳 |
| 専有面積 | 36.10m² | バルコニー面積 | |
| 築年月(築年数) | 2025年03月(築1年以内) | 方位 | 北東 |
| 建物構造 | RC(鉄筋コンクリート) | 所在階/階建 | 4階/5階建 |
| 総戸数 | - | 駐車場 | |
| 保険料 | 要 20,000円 2年 | 契約期間 | 2年間 |
| 現況(予定年月) | 2026年01月下旬 | ||
| 管理 | |||
| 設備・条件 | 2階以上、角部屋、システムキッチン、バス・トイレ別、温水洗浄便座、浴室乾燥機、室内洗濯機置き場、フローリング、エアコン、バルコニー、ペット相談、インターネット対応、オートロック、宅配ボックス、駐輪場、エレベータ、都市ガス | ||
| 備考 | ペット(小型犬・猫1匹まで)飼育時:礼金1ヶ月追加。短期解約違約金:1年未満1ヶ月。 | ||
| 周辺施設 |
コンビニ距離227m、スーパー距離139m、病院距離666m |
||
| 物件番号 | 956123 | 取引態様 | 仲介 |
| 情報更新日 | 2026年01月23日 | ||
| 物件番号 | |||
敷金・礼金・家賃・入居時期時期など、何でもご相談ください!
板橋でのお部屋探しなら仲宿商店街にある当店へ!
ハウス・トゥ・ハウス板橋区役所前店で元気にお待ちしております!







