GENOVIA西川口Ⅱ216 2階 | 1K | 8.5万円
賃貸情報をお探しになるなら、ぜひ当社にお任せ下さい。しっかりとサポート致しますのでお気軽にご連絡下さ
| 賃料 | 8.5万円 | 管理費・共益費 | 1万円 |
|---|---|---|---|
| 敷金/礼金 | なし / 1ヶ月 | 専有面積 | 22.03m² |
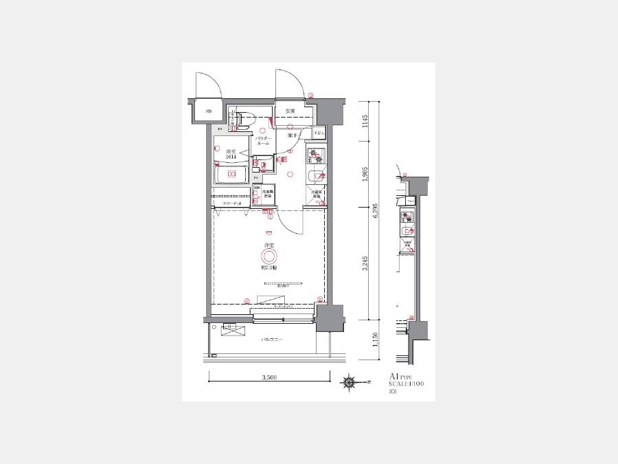
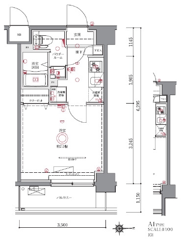
| 間取り | 1K | 階建 | 2階/7階建 |
GENOVIA西川口Ⅱ216の詳細
| 物件種別 | マンション | ||
|---|---|---|---|
| 賃料 | 8.5万円 | 管理費・共益費 | 1万円 |
| 敷金/保証金 | なし / - | 礼金/償却・敷引 | 1ヶ月 / - |
| 更新料 | 1.5ヶ月 | ||
| その他費用 |
事務手数料:11,000円 預かりクリーニング代:55,000円 鍵交換費用:38,500円 |
||
| 所在地 | 埼玉県川口市西川口2丁目5-1 | ||
| 交通 |
JR京浜東北・根岸線「西川口駅」 徒歩8分 JR京浜東北・根岸線「川口駅」 徒歩26分 |
||
| 間取り | 1K | 間取り内訳 |
洋室 7 畳 K |
| 専有面積 | 22.03m² | バルコニー面積 | |
| 築年月(築年数) | 2025年02月(築1年) | 方位 | 東 |
| 建物構造 | RC(鉄筋コンクリート) | 所在階/階建 | 2階/7階建 |
| 総戸数 | - | 駐車場 | |
| 保険料 | 要 20,000円 2年 | 契約期間 | 2年間 |
| 現況(予定年月) | 2026年04月中旬 | ||
| 管理 | |||
| 設備・条件 | 2階以上、システムキッチン、バス・トイレ別、温水洗浄便座、浴室乾燥機、室内洗濯機置き場、エアコン、バルコニー、分譲賃貸、敷金なし、保証人不要、ペット相談、インターネット対応、BSアンテナ、CSアンテナ、オートロック、TVドアホン、防犯カメラ、宅配ボックス、エレベータ、プロパンガス、デザイナーズ | ||
| 備考 | 口座振替手数料330円(月額) 24時間サポート1650円(月額) ペット飼育可能:敷引きとして家賃の1ヶ月分お支払いいただきます。 更新事務手数料16500円。 | ||
| 周辺施設 |
スーパー距離177m、病院距離340m |
||
| 物件番号 | 990449 | 取引態様 | 仲介 |
| 情報更新日 | 2026年02月14日 | ||
| 物件番号 | |||
敷金・礼金・家賃・入居時期時期など、何でもご相談ください!
2024年12月新規オープン!南浦和駅東口から徒歩1分♪
ハウス・トゥ・ハウス南浦和店で元気にお待ちしております!







