GENOVIA西川口Ⅱ213 2階 | 1K | 8.5万円
川口市エリアや京浜東北線西川口付近でお客様のご希望のお部屋が見つかるまで、当社スタッフが全力でサポー
| 賃料 | 8.5万円 | 管理費・共益費 | 1万円 |
|---|---|---|---|
| 敷金/礼金 | なし / 1ヶ月 | 専有面積 | 22.03m² |
| 間取り | 1K | 階建 | 2階/7階建 |
GENOVIA西川口Ⅱ213の詳細
| 物件種別 | マンション | ||
|---|---|---|---|
| 賃料 | 8.5万円 | 管理費・共益費 | 1万円 |
| 敷金/保証金 | なし / - | 礼金/償却・敷引 | 1ヶ月 / - |
| 更新料 | 1.5ヶ月 | ||
| その他費用 |
24時間サポート:1,650円 事務手数料:11,000円 鍵交換費用:38,500円 |
||
| 所在地 | 埼玉県川口市西川口2丁目5-1 | ||
| 交通 |
JR京浜東北・根岸線「西川口駅」 徒歩8分 JR京浜東北・根岸線「川口駅」 徒歩26分 |
||
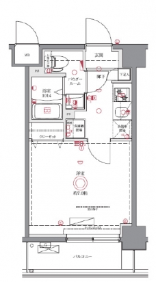
| 間取り | 1K | 間取り内訳 |
洋室 7 畳 K |
| 専有面積 | 22.03m² | バルコニー面積 | |
| 築年月(築年数) | 2025年02月(築1年以内) | 方位 | 東 |
| 建物構造 | RC(鉄筋コンクリート) | 所在階/階建 | 2階/7階建 |
| 総戸数 | - | 駐車場 | |
| 保険料 | 要 20,000円 2年 | 契約期間 | 2年間 |
| 現況(予定年月) | 2025年10月下旬 | ||
| 管理 | |||
| 設備・条件 | 2階以上、システムキッチン、温水洗浄便座、浴室乾燥機、室内洗濯機置き場、エアコン、バルコニー、分譲賃貸、敷金なし、保証人不要、ペット相談、インターネット対応、BSアンテナ、CSアンテナ、オートロック、TVドアホン、防犯カメラ、宅配ボックス、エレベータ、プロパンガス、デザイナーズ | ||
| 備考 | ペット飼育可能:敷引きとして家賃の1ヶ月分お支払いいただきます。契約解除時:室内清掃料賃料1ヶ月(税別)。更新事務手数料16500円。解約予告1ヶ月前。 | ||
| 周辺施設 |
スーパー距離177m、病院距離340m |
||
| 物件番号 | 933943 | 取引態様 | 仲介 |
| 情報更新日 | 2025年12月27日 | ||
| 物件番号 | |||
敷金・礼金・家賃・入居時期時期など、何でもご相談ください!
2024年12月新規オープン!南浦和駅東口から徒歩1分♪
ハウス・トゥ・ハウス南浦和店で元気にお待ちしております!







