ZOOM板橋大山106 1階 | 1K | 9.1万円
板橋警察署 熊野町交番が264mのところにあります。来訪者を確認してから施錠を解除できるため安全性
| 賃料 | 9.1万円 | 管理費・共益費 | 1.2万円 |
|---|---|---|---|
| 敷金/礼金 | 1ヶ月 / 1ヶ月 | 専有面積 | 26.22m² |
| 間取り | 1K | 階建 | 1階/8階建 |
ZOOM板橋大山106の詳細
| 物件種別 | マンション | ||
|---|---|---|---|
| 賃料 | 9.1万円 | 管理費・共益費 | 1.2万円 |
| 敷金/保証金 | 1ヶ月 / - | 礼金/償却・敷引 | 1ヶ月 / - |
| 更新料 | 1ヶ月 | ||
| その他費用 |
除菌消臭:8,800円 鍵交換費用:35,200円 室内清掃費用:48,400円 |
||
| 所在地 | 東京都板橋区熊野町36-8 | ||
| 交通 | |||
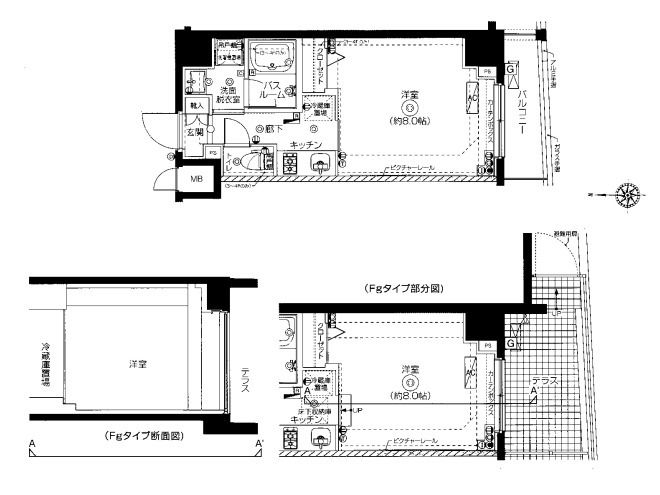
| 間取り | 1K | 間取り内訳 |
洋室 8 畳 1 室 K 1 室 |
| 専有面積 | 26.22m² | バルコニー面積 | |
| 築年月(築年数) | 2018年02月(築8年) | 方位 | 南 |
| 建物構造 | RC(鉄筋コンクリート) | 所在階/階建 | 1階/8階建 |
| 総戸数 | - | 駐車場 | |
| 保険料 | 要 20,000円 2年 | 契約期間 | 2年間 |
| 現況(予定年月) | 2026年04月中旬 | ||
| 管理 | |||
| 設備・条件 | 1階、角部屋、南向き部屋、バス・トイレ別、温水洗浄便座、浴室乾燥機、追い焚き、室内洗濯機置き場、エアコン、バルコニー、保証人不要、オートロック、防犯カメラ、宅配ボックス、エレベータ、都市ガス | ||
| 備考 | FAST ASSIST24/1100円(月額) 更新手数料0.5ヶ月。 365日以内の解約の場合、短期解約違約金 賃料(管理費込)1ヶ月分。 民泊利用禁止。 ペット飼育不可。 インターネットについては建物管理会社にお問い合わせください。 退去時エアコンクリーニング:13200円。 退去時ハウスクリーニング:48400円。 | ||
| 周辺施設 |
コンビニ距離210m、スーパー距離223m、病院距離739m |
||
| 物件番号 | 969093 | 取引態様 | 仲介 |
| 情報更新日 | 2026年02月06日 | ||
| 物件番号 | |||
敷金・礼金・家賃・入居時期時期など、何でもご相談ください!
池袋まで埼京線で5分というアクセス利便性が魅力★
ハウス・トゥ・ハウス板橋店で元気にお待ちしております!







