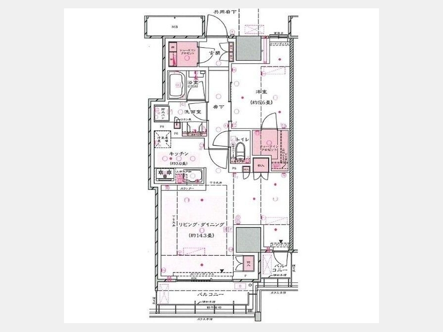
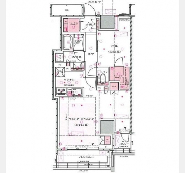
大宮スカイ&スクエア ザ・タワー622 6階 | 1LDK | 25万円
| 賃料 | 25万円 | 管理費・共益費 | 2万円 |
|---|---|---|---|
| 敷金/礼金 | なし / なし | 専有面積 | 56.14m² |
| 間取り | 1LDK | 階建 | 6階/28階建 |
大宮スカイ&スクエア ザ・タワー622の詳細
| 物件種別 | マンション | ||
|---|---|---|---|
| 賃料 | 25万円 | 管理費・共益費 | 2万円 |
| 敷金/保証金 | なし / - | 礼金/償却・敷引 | なし / - |
| 更新料 | 1ヶ月 | ||
| その他費用 |
ルームクリーニング料金:86,900円 エアコンクリーニング費用(1台):19,800円 鍵交換費用:66,000円 |
||
| 所在地 | 埼玉県さいたま市大宮区桜木町2丁目902 | ||
| 交通 |
JR京浜東北・根岸線「大宮(埼玉)駅」 徒歩5分 |
||
| 間取り | 1LDK | 間取り内訳 | |
| 専有面積 | 56.14m² | バルコニー面積 | |
| 築年月(築年数) | 2024年07月(築1年) | 方位 | 北西 |
| 建物構造 | RC(鉄筋コンクリート) | 所在階/階建 | 6階/28階建 |
| 総戸数 | - | 駐車場 | 無 |
| 保険料 | 要 21,500円 | 契約期間 | 2年間 |
| 現況(予定年月) | 相談 | ||
| 管理 | |||
| 設備・条件 | 2階以上、システムキッチン、カウンターキッチン、ディスポーザー、バス・トイレ別、温水洗浄便座、浴室乾燥機、追い焚き、室内洗濯機置き場、フローリング、エアコン、床暖房、ウォークインクローゼット、シューズインクローゼット、バルコニー、分譲賃貸、礼金なし、敷金なし、ペット相談、2人入居相談、インターネット対応、オートロック、TVドアホン、宅配ボックス、駐輪場、エレベータ、都市ガス、タワーマンション | ||
| 備考 | |||
| 周辺施設 |
コンビニ距離781m、スーパー距離1,140m |
||
| 物件番号 | 990199 | 取引態様 | 仲介 |
| 情報更新日 | 2026年02月12日 | ||
| 物件番号 | |||
敷金・礼金・家賃・入居時期時期など、何でもご相談ください!
2024年12月新規オープン!南浦和駅東口から徒歩1分♪
ハウス・トゥ・ハウス南浦和店で元気にお待ちしております!







