リヴシティ浦和常盤弐番館203 2階 | 1K | 8.9万円
| 賃料 | 8.9万円 | 管理費・共益費 | 1万円 |
|---|---|---|---|
| 敷金/礼金 | なし / 1ヶ月 | 専有面積 | 25.38m² |
| 間取り | 1K | 階建 | 2階/10階建 |
リヴシティ浦和常盤弐番館203の詳細
| 物件種別 | マンション | ||
|---|---|---|---|
| 賃料 | 8.9万円 | 管理費・共益費 | 1万円 |
| 敷金/保証金 | なし / - | 礼金/償却・敷引 | 1ヶ月 / - |
| 更新料 | 1.5ヶ月 | ||
| その他費用 |
契約事務手数料:5,500円 室内消毒代:16,500円 鍵交換費用:38,500円 |
||
| 所在地 | 埼玉県さいたま市浦和区常盤2丁目7-6 | ||
| 交通 |
JR京浜東北・根岸線「北浦和駅」 徒歩11分 JR京浜東北・根岸線「浦和駅」 徒歩12分 |
||
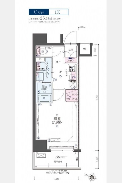
| 間取り | 1K | 間取り内訳 |
洋室 7.5 畳 |
| 専有面積 | 25.38m² | バルコニー面積 | |
| 築年月(築年数) | 2022年06月(築3年) | 方位 | 南西 |
| 建物構造 | RC(鉄筋コンクリート) | 所在階/階建 | 2階/10階建 |
| 総戸数 | - | 駐車場 | 無 |
| 保険料 | 不要 | 契約期間 | 2年間 |
| 現況(予定年月) | 即時 | ||
| 管理 | |||
| 設備・条件 | 2階以上、角部屋、システムキッチン、バス・トイレ別、温水洗浄便座、浴室乾燥機、室内洗濯機置き場、エアコン、ウォークインクローゼット、バルコニー、分譲賃貸、即入居可、敷金なし、保証人不要、ペット相談、インターネット対応、BSアンテナ、CSアンテナ、オートロック、TVドアホン、防犯カメラ、宅配ボックス、駐輪場、エレベータ、都市ガス | ||
| 備考 | 24時間サポート火災保険付2200円(月額) | ||
| 周辺施設 |
コンビニ距離361m、スーパー距離637m |
||
| 物件番号 | 984629 | 取引態様 | 仲介 |
| 情報更新日 | 2026年02月03日 | ||
| 物件番号 | |||
敷金・礼金・家賃・入居時期時期など、何でもご相談ください!
2024年12月新規オープン!南浦和駅東口から徒歩1分♪
ハウス・トゥ・ハウス南浦和店で元気にお待ちしております!







