コンフォリア・リヴ東池袋401 4階 | 2LDK | 23万円
お車でご案内いたします。お気軽にお問い合わせください。
| 賃料 | 23万円 | 管理費・共益費 | 1.5万円 |
|---|---|---|---|
| 敷金/礼金 | 1ヶ月 / なし | 専有面積 | 44.01m² |
| 間取り | 2LDK | 階建 | 4階/12階建 |
コンフォリア・リヴ東池袋401の詳細
| 物件種別 | マンション | ||
|---|---|---|---|
| 賃料 | 23万円 | 管理費・共益費 | 1.5万円 |
| 敷金/保証金 | 1ヶ月 / - | 礼金/償却・敷引 | なし / - |
| 更新料 | 1ヶ月 | ||
| その他費用 |
鍵交換費用:33,000円 室内清掃費用:69,960円 |
||
| 所在地 | 東京都豊島区東池袋2丁目7-2 | ||
| 交通 | |||
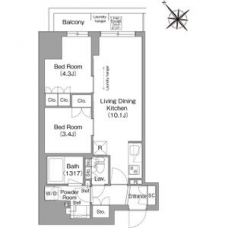
| 間取り | 2LDK | 間取り内訳 |
LDK 10.1 畳 1 室 洋室 4.3 畳 1 室 洋室 3.4 畳 1 室 |
| 専有面積 | 44.01m² | バルコニー面積 | |
| 築年月(築年数) | 2025年02月(築1年) | 方位 | 北東 |
| 建物構造 | RC(鉄筋コンクリート) | 所在階/階建 | 4階/12階建 |
| 総戸数 | 45戸 | 駐車場 | 無 |
| 保険料 | 要 16,550円 2年 | 契約期間 | 2年間 |
| 現況(予定年月) | 2026年04月下旬 | ||
| 管理 | |||
| 設備・条件 | 2階以上、システムキッチン、バス・トイレ別、温水洗浄便座、浴室乾燥機、追い焚き、室内洗濯機置き場、フローリング、エアコン、バルコニー、礼金なし、保証人不要、ペット相談、インターネット対応、BSアンテナ、CSアンテナ、オートロック、TVドアホン、防犯カメラ、宅配ボックス、駐輪場、エレベータ、都市ガス | ||
| 備考 | ◆ペット相談可(小型犬1匹または猫2匹まで/敷金1ヶ月積み増し) ◆1年以内の解約時は賃料1ヶ月分の短期解約違約金あり ◆入居中退去時の修繕特約あり | ||
| 周辺施設 |
コンビニ距離79m、スーパー距離206m、病院距離806m |
||
| 物件番号 | 996563 | 取引態様 | 仲介 |
| 情報更新日 | 2026年03月03日 | ||
| 物件番号 | |||
敷金・礼金・家賃・入居時期時期など、何でもご相談ください!
JR山手線・巣鴨駅から徒歩1分!
ハウス・トゥ・ハウス巣鴨店で元気にお待ちしております!







