パークアクシス板橋本町ステーションゲート702 7階 | 2LDK | 23.3万円
都営三田線板橋本町駅周辺への引っ越しをお考えなら「パークアクシス板橋本町ステーションゲート」。min
| 賃料 | 23.3万円 | 管理費・共益費 | 2万円 |
|---|---|---|---|
| 敷金/礼金 | 1ヶ月 / なし | 専有面積 | 55.90m² |
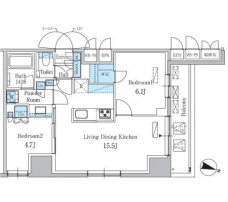
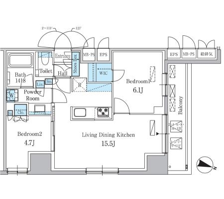
| 間取り | 2LDK | 階建 | 7階/12階建 |
パークアクシス板橋本町ステーションゲート702の詳細
| 物件種別 | マンション | ||
|---|---|---|---|
| 賃料 | 23.3万円 | 管理費・共益費 | 2万円 |
| 敷金/保証金 | 1ヶ月 / - | 礼金/償却・敷引 | なし / - |
| 更新料 | 1ヶ月 | ||
| その他費用 | 室内清掃費用:86,086円 | ||
| 所在地 | 東京都板橋区清水町36-4 | ||
| 交通 | |||
| 間取り | 2LDK | 間取り内訳 |
洋室 6.1 畳 洋室 4.7 畳 LDK 15.5 畳 |
| 専有面積 | 55.90m² | バルコニー面積 | |
| 築年月(築年数) | 2024年12月(未入居) | 方位 | 北 |
| 建物構造 | RC(鉄筋コンクリート) | 所在階/階建 | 7階/12階建 |
| 総戸数 | - | 駐車場 | |
| 保険料 | 要 | 契約期間 | 2年間 |
| 現況(予定年月) | 即時 | ||
| 管理 | |||
| 設備・条件 | 2階以上、角部屋、システムキッチン、カウンターキッチン、バス・トイレ別、浴室乾燥機、追い焚き、室内洗濯機置き場、フローリング、エアコン、床暖房、ウォークインクローゼット、バルコニー、即入居可、礼金なし、保証人不要、ペット相談、仲介手数料無料、インターネット対応、BSアンテナ、CSアンテナ、CATV、オートロック、宅配ボックス、駐輪場、エレベータ、都市ガス | ||
| 備考 | ペット飼育時:敷金1ヶ月積み増し。短期解約違約金:1年未満解約時賃料1ヶ月分、契約期間満了前解約時フリーレント分(賃料・共益費)。 | ||
| 周辺施設 |
コンビニ距離285m、スーパー距離208m、病院距離322m |
||
| 物件番号 | 938962 | 取引態様 | 仲介 |
| 情報更新日 | 2025年12月25日 | ||
| 物件番号 | |||
敷金・礼金・家賃・入居時期時期など、何でもご相談ください!
板橋でのお部屋探しなら仲宿商店街にある当店へ!
ハウス・トゥ・ハウス板橋区役所前店で元気にお待ちしております!







