アーバネックス駒込1102 11階 | 1LDK | 19.5万円
アーバネックス駒込:南北線駒込駅にも近くて便利。エネルギースーパーたじま 駒込店まで90mです。防
| 賃料 | 19.5万円 | 管理費・共益費 | 1.5万円 |
|---|---|---|---|
| 敷金/礼金 | 1ヶ月 / なし | 専有面積 | 31.58m² |
| 間取り | 1LDK | 階建 | 11階/14階建 |
アーバネックス駒込1102の詳細
| 物件種別 | マンション | ||
|---|---|---|---|
| 賃料 | 19.5万円 | 管理費・共益費 | 1.5万円 |
| 敷金/保証金 | 1ヶ月 / - | 礼金/償却・敷引 | なし / - |
| 更新料 | 1ヶ月 | ||
| その他費用 | 鍵交換費用:44,000円 | ||
| 所在地 | 東京都豊島区駒込2丁目7-11 | ||
| 交通 | |||
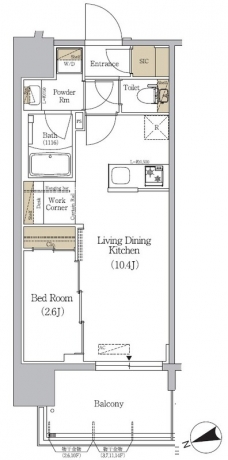
| 間取り | 1LDK | 間取り内訳 |
洋室 2.6 畳 LDK 10.4 畳 |
| 専有面積 | 31.58m² | バルコニー面積 | |
| 築年月(築年数) | 2025年01月(築1年) | 方位 | 西 |
| 建物構造 | RC(鉄筋コンクリート) | 所在階/階建 | 11階/14階建 |
| 総戸数 | - | 駐車場 | |
| 保険料 | 不要 | 契約期間 | 2年間 |
| 現況(予定年月) | 2026年03月下旬 | ||
| 管理 | |||
| 設備・条件 | 2階以上、システムキッチン、カウンターキッチン、バス・トイレ別、浴室乾燥機、追い焚き、室内洗濯機置き場、フローリング、エアコン、シューズインクローゼット、バルコニー、礼金なし、BSアンテナ、CSアンテナ、オートロック、宅配ボックス、エレベータ | ||
| 備考 | ■1年未満短期解約違約金有:賃料1ヶ月分とフリーレント有の場合はフリーレント分(賃料+共益費) ■解約月は日割り無 ■電気・ガスはCDエナジーダイレクト株式会社を標準仕様 | ||
| 周辺施設 |
コンビニ距離150m、スーパー距離90m、病院距離894m |
||
| 物件番号 | 991341 | 取引態様 | 仲介 |
| 情報更新日 | 2026年02月17日 | ||
| 物件番号 | |||
敷金・礼金・家賃・入居時期時期など、何でもご相談ください!
JR山手線・巣鴨駅から徒歩1分!
ハウス・トゥ・ハウス巣鴨店で元気にお待ちしております!







