セントヒルズ東川口301 3階 | 3LDK | 9万円
角部屋2面採光で明るいお部屋♪
| 賃料 | 9万円 | 管理費・共益費 | なし |
|---|---|---|---|
| 敷金/礼金 | 1ヶ月 / なし | 専有面積 | 64.24m² |
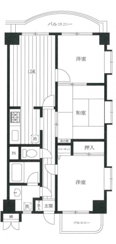
| 間取り | 3LDK | 階建 | 3階/6階建 |
セントヒルズ東川口301の詳細
| 物件種別 | マンション | ||
|---|---|---|---|
| 賃料 | 9万円 | 管理費・共益費 | なし |
| 敷金/保証金 | 1ヶ月 / - | 礼金/償却・敷引 | なし / - |
| 更新料 | 1ヶ月 | ||
| その他費用 | 事務手数料:13,200円 | ||
| 所在地 | 埼玉県川口市北原台2丁目17-10 | ||
| 交通 | |||
| 間取り | 3LDK | 間取り内訳 | |
| 専有面積 | 64.24m² | バルコニー面積 | |
| 築年月(築年数) | 1988年08月(築37年) | 方位 | 北 |
| 建物構造 | RC(鉄筋コンクリート) | 所在階/階建 | 3階/6階建 |
| 総戸数 | - | 駐車場 | |
| 保険料 | 要 23,000円 2年 | 契約期間 | 2年間 |
| 現況(予定年月) | 即時 | ||
| 管理 | |||
| 設備・条件 | 2階以上、角部屋、バス・トイレ別、室内洗濯機置き場、エアコン、バルコニー、即入居可、礼金なし、2人入居相談、ルームシェア相談、 | ||
| 備考 | 鍵交換費用22000円(退去時精算)。 室内禁煙。 | ||
| 周辺施設 |
コンビニ距離1,307m、スーパー距離774m、病院距離3,699m |
||
| 物件番号 | 941499 | 取引態様 | 仲介 |
| 情報更新日 | 2026年02月09日 | ||
| 物件番号 | |||
敷金・礼金・家賃・入居時期時期など、何でもご相談ください!
埼玉県への玄関口・川口でお部屋探し♪
ハウス・トゥ・ハウス川口店で元気にお待ちしております!







